中央区築地にある2階の事務所仕様の貸店舗・テナント物件のご案内です。

ゲスト

営業時間:9:30~18:30(土日・祝日を除く)

ゲスト

中央区築地にある2階の事務所仕様の貸店舗・テナント物件のご案内です。

居抜き市場トップ 居抜き物件、貸店舗を探す 東京メトロ有楽町線 , 中央区 中央区築地にある2階の事務所仕様の貸店舗・テナント物件詳細

東京メトロ有楽町線

新富町駅

徒歩2

所在地

中央区築地・・・詳細は

貸店舗(事務所仕様)のエントランス
新富町の事務所仕様店舗物件の内装

ログイン後に

物件情報の全てがご覧いただけます。

会員登録(無料)
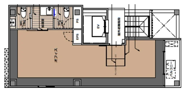
貸店舗(事務所仕様)の平面図

ログイン後に

物件情報の全てがご覧いただけます。

会員登録(無料)
貸店舗(事務所仕様)のエントランス
新富町の事務所仕様店舗物件の内装
貸店舗(事務所仕様)の平面図
賃料

376,970円(税込)

階数/面積

2F / 14.9坪 (49.28㎡)

敷金・保証金

8ヶ月分

飲食条件

飲食可

物件タイプ/現業態

事務所仕様

※会員限定の
情報
ございます。

会員限定の情報がございます。

会員登録(無料)をしていただくと、 物件詳細、物件資料のダウンロード、地図での立地確認など 会員限定の公開情報を閲覧・取得できるようになります。

会員登録(無料)

東京メトロ有楽町線『新富町駅』徒歩2分!『築地駅』からも徒歩3分の好立地から飲食相談可能な貸テナントのご紹介です。大通りから少し入ったエリアで、飲食店も多数盛業中のエリア!周辺は事務所が多く、ビジネスパーソンを中心に集客が見込めるため、バーやパーソナルジムにおすすめです。業種等、お気軽にお問合せください。

物件概要

会員登録(無料)をすることで
物件情報の全てがご覧いただけます。

会員登録(無料)をしていただくと、他社には出回っていない物件情報の収集、
非会員の方には閲覧できない詳細情報、物件資料のダウンロード、
地図での立地確認など会員限定公開情報を閲覧・取得できるようになります。

会員登録(無料)

地図

会員登録後にご覧いただけます。

会員登録(無料)
×
区分
新着・未公開物件情報

登録で 会員規約プライバシーポリシー に同意したものとします。

※必須

会員登録(無料)
物件詳細や公開情報がご覧になれます!