道路に面した1階のスケルトン貸店舗・テナント物件のご案内です。

ゲスト

営業時間:9:30~18:30(土日・祝日を除く)

ゲスト

道路に面した1階のスケルトン貸店舗・テナント物件のご案内です。

居抜き市場トップ 居抜き物件、貸店舗を探す 都営三田線 , 板橋区 道路に面した1階のスケルトン貸店舗・テナント物件詳細

都営三田線

本蓮沼駅

徒歩3

所在地

板橋区清水町・・・詳細は

本蓮沼のスケルトン店舗物件の外観
本蓮沼のスケルトン店舗物件の内装

ログイン後に

物件情報の全てがご覧いただけます。

会員登録(無料)
貸店舗(スケルトン)の内装

ログイン後に

物件情報の全てがご覧いただけます。

会員登録(無料)
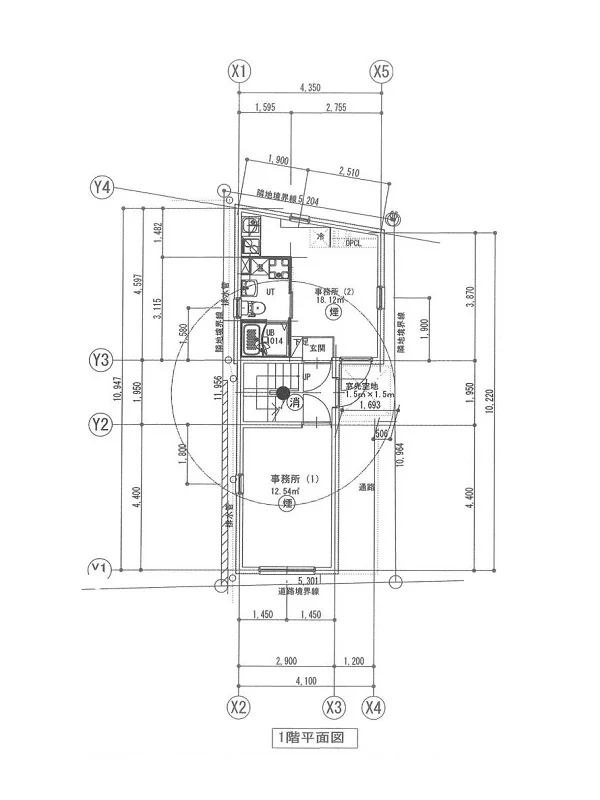
貸店舗(スケルトン)の平面図

ログイン後に

物件情報の全てがご覧いただけます。

会員登録(無料)
本蓮沼のスケルトン物件の地図

ログイン後に

物件情報の全てがご覧いただけます。

会員登録(無料)
本蓮沼のスケルトン店舗物件の外観
本蓮沼のスケルトン店舗物件の内装
貸店舗(スケルトン)の内装
貸店舗(スケルトン)の平面図
本蓮沼のスケルトン物件の地図
賃料

110,000円(税込)

階数/面積

1F / 3.93坪 (13㎡)

敷金・保証金

5ヶ月分

飲食条件

飲食可(重飲食不可)

物件タイプ/現業態

スケルトン

※会員限定の
情報
ございます。

会員限定の情報がございます。

会員登録(無料)をしていただくと、 物件詳細、物件資料のダウンロード、地図での立地確認など 会員限定の公開情報を閲覧・取得できるようになります。

会員登録(無料)
  • 路面店
  • 値下げ

★国道17号沿いの視認性良好な路面店 スケルトン★
ワンオペ向けの小箱物件

【インフラ】電灯:有    動力:無    ガス:無    水道:20mm
【厨房排気】無
【空調】有 / 家庭用
【グリスト】無
【引渡状態】スケルトン
【トイレ】設置予定
【不可業態】重飲食不可、カラオケ不可
【営業時間制限】原則24時まで  
【間口】約2.4m
【天高】2600mm
※記載の店舗情報は正確性を保証するものではございません。

物件概要

会員登録(無料)をすることで
物件情報の全てがご覧いただけます。

会員登録(無料)をしていただくと、他社には出回っていない物件情報の収集、
非会員の方には閲覧できない詳細情報、物件資料のダウンロード、
地図での立地確認など会員限定公開情報を閲覧・取得できるようになります。

会員登録(無料)

地図

会員登録後にご覧いただけます。

会員登録(無料)
×
区分
新着・未公開物件情報

登録で 会員規約プライバシーポリシー に同意したものとします。

※必須

会員登録(無料)
物件詳細や公開情報がご覧になれます!