重飲食ができる小岩駅徒歩3分の居抜き店舗のご案内です。

ゲスト

営業時間:9:30~18:30(土日・祝日を除く)

ゲスト

重飲食ができる小岩駅徒歩3分の居抜き店舗のご案内です。

居抜き市場トップ 居抜き物件、貸店舗を探す JR中央・総武線 , 江戸川区 重飲食ができる小岩駅徒歩3分の居抜き店舗情報

JR中央・総武線

小岩駅

徒歩3

所在地

江戸川区南小岩・・・詳細は

小岩の居抜き店舗の内装
ガールズバーの居抜き物件の内装

ログイン後に

物件情報の全てがご覧いただけます。

会員登録(無料)
ガールズバーの居抜き物件の内装

ログイン後に

物件情報の全てがご覧いただけます。

会員登録(無料)
小岩のガールズバー居抜きの内装

ログイン後に

物件情報の全てがご覧いただけます。

会員登録(無料)
小岩のガールズバー居抜きの外観

ログイン後に

物件情報の全てがご覧いただけます。

会員登録(無料)
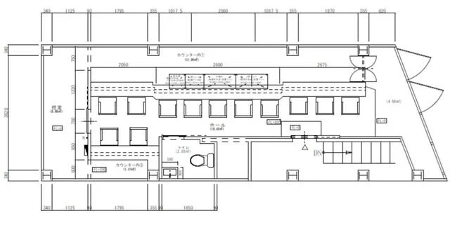
小岩の居抜き店舗の平面図

ログイン後に

物件情報の全てがご覧いただけます。

会員登録(無料)
小岩の居抜き店舗の内装
ガールズバーの居抜き物件の内装
ガールズバーの居抜き物件の内装
小岩のガールズバー居抜きの内装
小岩のガールズバー居抜きの外観
小岩の居抜き店舗の平面図
賃料

330,000円(税込)

階数/面積

2F / 13.38坪 (44.26㎡)

敷金・保証金

6ヶ月分

造作代金

無償譲渡

飲食条件

重飲食可

物件タイプ/現業態

居抜き / ガールズバー

※会員限定の
情報
ございます。

会員限定の情報がございます。

会員登録(無料)をしていただくと、 物件詳細、物件資料のダウンロード、地図での立地確認など 会員限定の公開情報を閲覧・取得できるようになります。

会員登録(無料)

JR総武線『小岩駅』徒歩3分、ガールズバー居抜き物件のご紹介です。駅からアクセスなビル2階店舗!多くの飲食店が集まる小岩地蔵中央通り会内で、集客が期待できます。重飲食のご相談も可能なため、業種等お気軽にお問合せください。

物件概要

会員登録(無料)をすることで
物件情報の全てがご覧いただけます。

会員登録(無料)をしていただくと、他社には出回っていない物件情報の収集、
非会員の方には閲覧できない詳細情報、物件資料のダウンロード、
地図での立地確認など会員限定公開情報を閲覧・取得できるようになります。

会員登録(無料)

地図

会員登録後にご覧いただけます。

会員登録(無料)
×
区分
新着・未公開物件情報

登録で 会員規約プライバシーポリシー に同意したものとします。

※必須

会員登録(無料)
物件詳細や公開情報がご覧になれます!