重飲食可能な1階路面のスケルトン物件のご案内です。

ゲスト

営業時間:9:30~18:30(土日・祝日を除く)

ゲスト

重飲食可能な1階路面のスケルトン物件のご案内です。

居抜き市場トップ 居抜き物件、貸店舗を探す 東急大井町線 , 目黒区 重飲食可能な1階路面のスケルトン物件情報

東急大井町線

自由が丘駅

徒歩4

所在地

目黒区自由が丘・・・詳細は

自由が丘のスケルトン店舗物件の外観
自由が丘のスケルトン物件の内装

ログイン後に

物件情報の全てがご覧いただけます。

会員登録(無料)
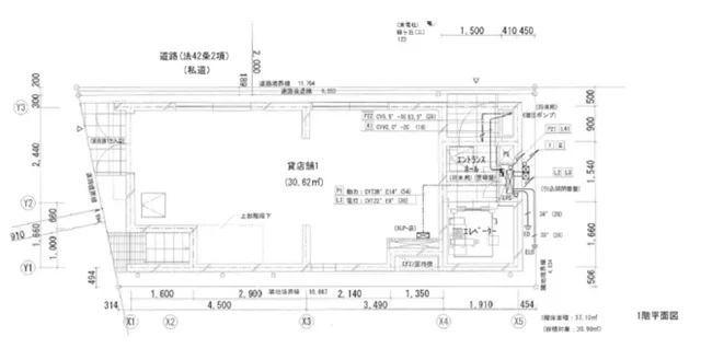
自由が丘のスケルトン物件の平面図

ログイン後に

物件情報の全てがご覧いただけます。

会員登録(無料)
自由が丘のスケルトン店舗物件の外観
自由が丘のスケルトン物件の内装
自由が丘のスケルトン物件の平面図
賃料

440,000円(税込)

階数/面積

1F / 9.26坪 (30.62㎡)

敷金・保証金

10ヶ月分

飲食条件

重飲食可

物件タイプ/現業態

スケルトン

※会員限定の
情報
ございます。

会員限定の情報がございます。

会員登録(無料)をしていただくと、 物件詳細、物件資料のダウンロード、地図での立地確認など 会員限定の公開情報を閲覧・取得できるようになります。

会員登録(無料)
  • 路面店

【新築】東急大井町線『自由が丘駅』徒歩4分、飲食店相談可能な貸テナントのご紹介です。2025年6月竣工予定の新築スケルトン物件!ビストロや居酒屋、カフェなど多様な飲食店が営業する商店街沿い路面店!諸条件等、お気軽にお問合せください。

物件概要

会員登録(無料)をすることで
物件情報の全てがご覧いただけます。

会員登録(無料)をしていただくと、他社には出回っていない物件情報の収集、
非会員の方には閲覧できない詳細情報、物件資料のダウンロード、
地図での立地確認など会員限定公開情報を閲覧・取得できるようになります。

会員登録(無料)

地図

会員登録後にご覧いただけます。

会員登録(無料)
×
区分
新着・未公開物件情報

登録で 会員規約プライバシーポリシー に同意したものとします。

※必須

会員登録(無料)
物件詳細や公開情報がご覧になれます!