新宿区西新宿にある5階のエステ居抜き物件のご案内です。

ゲスト

営業時間:9:30~18:30(土日・祝日を除く)

ゲスト

新宿区西新宿にある5階のエステ居抜き物件のご案内です。

居抜き市場トップ 居抜き物件、貸店舗を探す 都営大江戸線 , 新宿区 新宿区西新宿にある5階のエステ居抜き物件詳細

都営大江戸線

都庁前駅

徒歩7

所在地

新宿区西新宿・・・詳細は

都庁前のエステ居抜きの内装
都庁前の居抜き店舗の内装

ログイン後に

物件情報の全てがご覧いただけます。

会員登録(無料)
都庁前の居抜き店舗の外観

ログイン後に

物件情報の全てがご覧いただけます。

会員登録(無料)
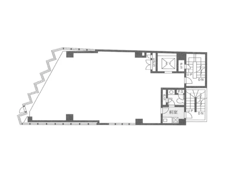
都庁前の居抜き店舗の平面図

ログイン後に

物件情報の全てがご覧いただけます。

会員登録(無料)
都庁前のエステ居抜きの内装
都庁前の居抜き店舗の内装
都庁前の居抜き店舗の外観
都庁前の居抜き店舗の平面図
賃料

825,000円(税込)

階数/面積

5F / 35.65坪 (117.86㎡)

敷金・保証金

8ヶ月分

造作代金

相談

飲食条件

飲食不可

物件タイプ/現業態

居抜き / エステ

※会員限定の
情報
ございます。

会員限定の情報がございます。

会員登録(無料)をしていただくと、 物件詳細、物件資料のダウンロード、地図での立地確認など 会員限定の公開情報を閲覧・取得できるようになります。

会員登録(無料)

『新宿駅』『都庁前駅』最寄り、エステサロン居抜き物件のご案内です。室内は完全個室4のレイアウトでした。各種美容サロンやマッサージ・リラクゼーションといった類似業態をお考えのお客様におすすめです。諸条件等、お気軽にお問合せください。

物件概要

会員登録(無料)をすることで
物件情報の全てがご覧いただけます。

会員登録(無料)をしていただくと、他社には出回っていない物件情報の収集、
非会員の方には閲覧できない詳細情報、物件資料のダウンロード、
地図での立地確認など会員限定公開情報を閲覧・取得できるようになります。

会員登録(無料)

地図

会員登録後にご覧いただけます。

会員登録(無料)
×
区分
新着・未公開物件情報

登録で 会員規約プライバシーポリシー に同意したものとします。

※必須

会員登録(無料)
物件詳細や公開情報がご覧になれます!