港区麻布十番にある2階のスケルトン貸店舗・テナント物件のご案内です。

ゲスト

営業時間:9:30~18:30(土日・祝日を除く)

ゲスト

港区麻布十番にある2階のスケルトン貸店舗・テナント物件のご案内です。

居抜き市場トップ 居抜き物件、貸店舗を探す 東京メトロ南北線 , 港区 港区麻布十番にある2階のスケルトン貸店舗・テナント物件詳細

東京メトロ南北線

麻布十番駅

徒歩2

所在地

港区麻布十番・・・詳細は

麻布十番のスケルトン物件の内装
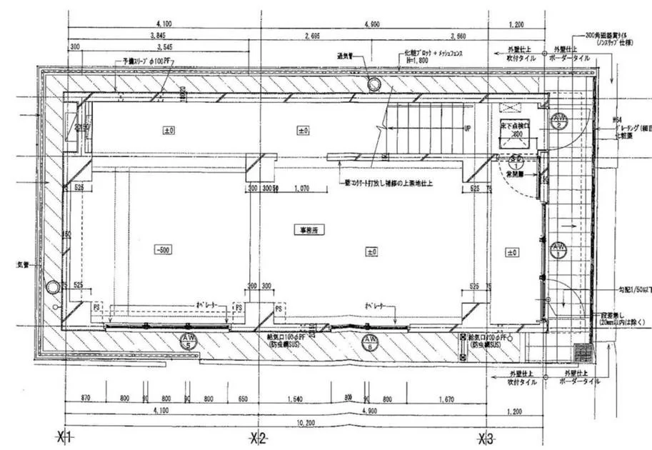
貸店舗(スケルトン)の平面図

ログイン後に

物件情報の全てがご覧いただけます。

会員登録(無料)
麻布十番のスケルトン店舗物件の外観

ログイン後に

物件情報の全てがご覧いただけます。

会員登録(無料)
麻布十番のスケルトン物件の内装
貸店舗(スケルトン)の平面図
麻布十番のスケルトン店舗物件の外観
賃料

575,960円(税込)

階数/面積

2F / 14.96坪 (49.47㎡)

敷金・保証金

10ヶ月分

飲食条件

軽飲食可

物件タイプ/現業態

スケルトン

※会員限定の
情報
ございます。

会員限定の情報がございます。

会員登録(無料)をしていただくと、 物件詳細、物件資料のダウンロード、地図での立地確認など 会員限定の公開情報を閲覧・取得できるようになります。

会員登録(無料)

東京メトロ『麻布十番駅』徒歩2分、軽飲食ご相談可能な貸テナントのご紹介です。麻布十番商店街大通りから一本入った好立地!駅からも近く、アクセス良好です。カフェや美容サロン、パーソナルジムなどにおすすめです。諸条件等、お気軽にお問合せください。

物件概要

会員登録(無料)をすることで
物件情報の全てがご覧いただけます。

会員登録(無料)をしていただくと、他社には出回っていない物件情報の収集、
非会員の方には閲覧できない詳細情報、物件資料のダウンロード、
地図での立地確認など会員限定公開情報を閲覧・取得できるようになります。

会員登録(無料)

地図

会員登録後にご覧いただけます。

会員登録(無料)
×
区分
新着・未公開物件情報

登録で 会員規約プライバシーポリシー に同意したものとします。

※必須

会員登録(無料)
物件詳細や公開情報がご覧になれます!