1階路面、武蔵野市吉祥寺本町のBAR・ショットバー居抜き物件のご案内です。

ゲスト

営業時間:9:30~18:30(土日・祝日を除く)

ゲスト

1階路面、武蔵野市吉祥寺本町のBAR・ショットバー居抜き物件のご案内です。

居抜き市場トップ 居抜き物件、貸店舗を探す JR中央線 , 武蔵野市 1階路面、武蔵野市吉祥寺本町のBAR・ショットバー居抜き物件詳細

JR中央線

吉祥寺駅

徒歩2

所在地

武蔵野市吉祥寺本町・・・詳細は

吉祥寺のBAR・ショットバー居抜きの外観
BAR・ショットバーの居抜き物件の外観

ログイン後に

物件情報の全てがご覧いただけます。

会員登録(無料)
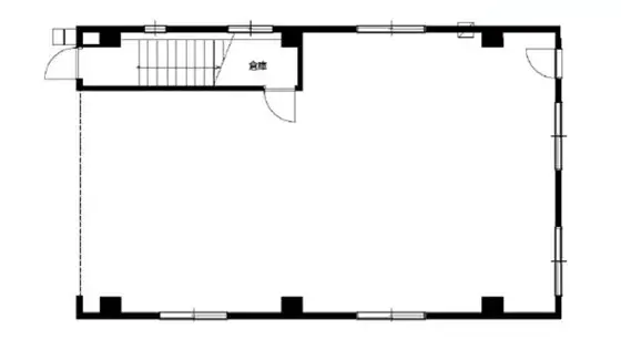
吉祥寺の居抜き店舗の平面図

ログイン後に

物件情報の全てがご覧いただけます。

会員登録(無料)
吉祥寺のBAR・ショットバー居抜きの外観
BAR・ショットバーの居抜き物件の外観
吉祥寺の居抜き店舗の平面図
賃料

715,000円(税込)

階数/面積

1F / 25.84坪 (85.44㎡)

敷金・保証金

8ヶ月分

造作代金

相談

飲食条件

飲食可(重飲食不可)

物件タイプ/現業態

居抜き / BAR・ショットバー

※会員限定の
情報
ございます。

会員限定の情報がございます。

会員登録(無料)をしていただくと、 物件詳細、物件資料のダウンロード、地図での立地確認など 会員限定の公開情報を閲覧・取得できるようになります。

会員登録(無料)
  • 路面店

JR中央線・京王井の頭線『吉祥寺駅』徒歩2分、バー居抜き物件のご紹介です。居酒屋やバー等飲み屋を中心に飲食店が集まる、人気のヨドバシ裏エリアに位置しています。整体院や物販店にもおすすめ!諸条件等、お気軽にお問合せください。

物件概要

会員登録(無料)をすることで
物件情報の全てがご覧いただけます。

会員登録(無料)をしていただくと、他社には出回っていない物件情報の収集、
非会員の方には閲覧できない詳細情報、物件資料のダウンロード、
地図での立地確認など会員限定公開情報を閲覧・取得できるようになります。

会員登録(無料)

地図

会員登録後にご覧いただけます。

会員登録(無料)
×
区分
新着・未公開物件情報

登録で 会員規約プライバシーポリシー に同意したものとします。

※必須

会員登録(無料)
物件詳細や公開情報がご覧になれます!