土呂駅徒歩14分のうどん・そば居抜き物件のご案内です。

ゲスト

営業時間:9:30~18:30(土日・祝日を除く)

ゲスト

土呂駅徒歩14分のうどん・そば居抜き物件のご案内です。

居抜き市場トップ 居抜き物件、貸店舗を探す JR宇都宮線 , さいたま市北区 土呂駅徒歩14分のうどん・そば居抜き物件情報

JR宇都宮線

土呂駅

徒歩14

所在地

さいたま市北区本郷町・・・詳細は

うどん・そばの居抜き物件の内装
土呂の居抜き店舗の内装

ログイン後に

物件情報の全てがご覧いただけます。

会員登録(無料)
うどん・そばの居抜き物件の外観

ログイン後に

物件情報の全てがご覧いただけます。

会員登録(無料)
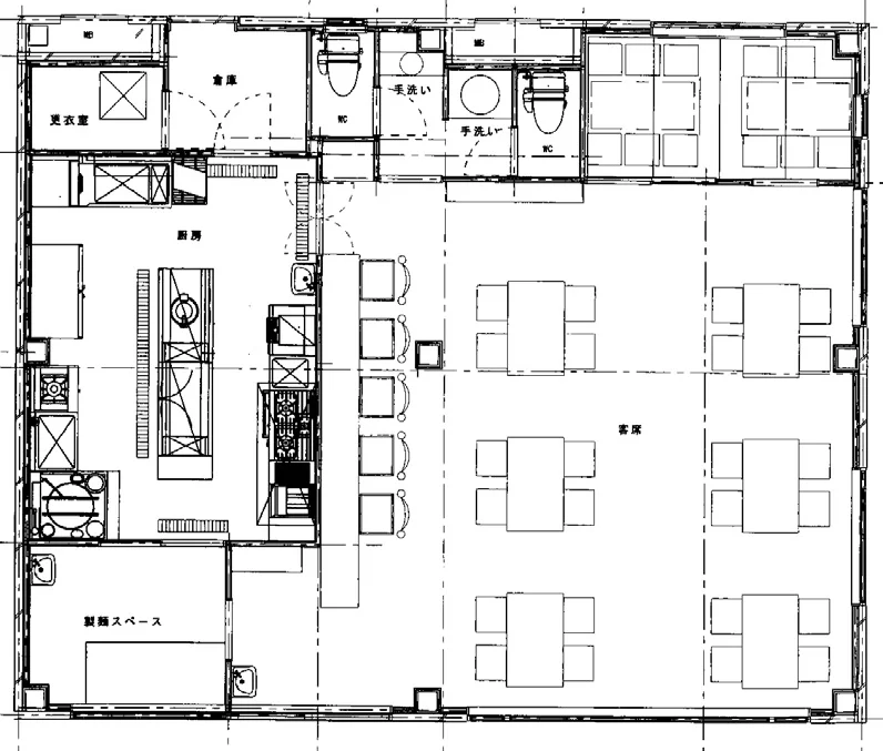
土呂の居抜き店舗の平面図

ログイン後に

物件情報の全てがご覧いただけます。

会員登録(無料)
うどん・そばの居抜き物件の内装
土呂の居抜き店舗の内装
うどん・そばの居抜き物件の外観
土呂の居抜き店舗の平面図
賃料

360,000円(税込)

階数/面積

1F / 32.2坪 (106.44㎡)

敷金・保証金

4ヶ月分

造作代金

2,000,000円(税込)

飲食条件

飲食可

物件タイプ/現業態

居抜き / うどん・そば

※会員限定の
情報
ございます。

会員限定の情報がございます。

会員登録(無料)をしていただくと、 物件詳細、物件資料のダウンロード、地図での立地確認など 会員限定の公開情報を閲覧・取得できるようになります。

会員登録(無料)

JR『土呂駅』徒歩14分、うどん店居抜き物件のご案内です。店内はカウンター3席、4人掛けテーブル6卓、個室6名分1室というレイアウトでした。駐車場有、周辺は住宅街で地域密着型の営業に最適なエリアです。諸条件等、お気軽にお問合せください。

物件概要

会員登録(無料)をすることで
物件情報の全てがご覧いただけます。

会員登録(無料)をしていただくと、他社には出回っていない物件情報の収集、
非会員の方には閲覧できない詳細情報、物件資料のダウンロード、
地図での立地確認など会員限定公開情報を閲覧・取得できるようになります。

会員登録(無料)

地図

会員登録後にご覧いただけます。

会員登録(無料)
×
区分
新着・未公開物件情報

登録で 会員規約プライバシーポリシー に同意したものとします。

※必須

会員登録(無料)
物件詳細や公開情報がご覧になれます!