等々力駅、1階路面のスケルトン店舗物件のご案内です。

ゲスト

営業時間:9:30~18:30(土日・祝日を除く)

ゲスト

等々力駅、1階路面のスケルトン店舗物件のご案内です。

居抜き市場トップ 居抜き物件、貸店舗を探す 東急大井町線 , 世田谷区 等々力駅、1階路面のスケルトン店舗物件情報

東急大井町線

等々力駅

徒歩4

所在地

世田谷区等々力・・・詳細は

等々力のスケルトン物件の外観
貸店舗(スケルトン)のエントランス

ログイン後に

物件情報の全てがご覧いただけます。

会員登録(無料)
等々力のスケルトン店舗物件の外観

ログイン後に

物件情報の全てがご覧いただけます。

会員登録(無料)
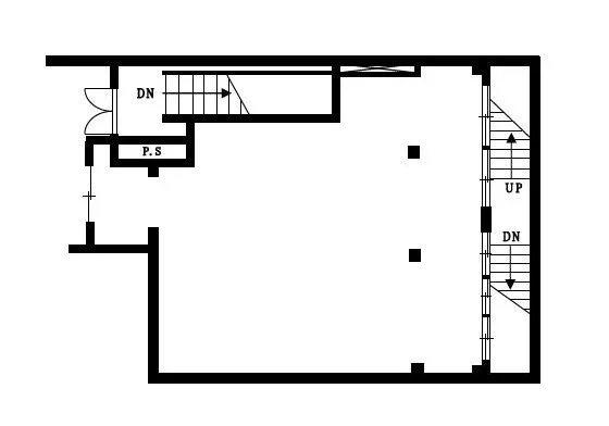
貸店舗(スケルトン)の平面図

ログイン後に

物件情報の全てがご覧いただけます。

会員登録(無料)
等々力のスケルトン物件の外観
貸店舗(スケルトン)のエントランス
等々力のスケルトン店舗物件の外観
貸店舗(スケルトン)の平面図
賃料

440,000円(税込)

階数/面積

1F / 29.36坪 (97.07㎡)

敷金・保証金

3ヶ月分

飲食条件

飲食可

物件タイプ/現業態

スケルトン

※会員限定の
情報
ございます。

会員限定の情報がございます。

会員登録(無料)をしていただくと、 物件詳細、物件資料のダウンロード、地図での立地確認など 会員限定の公開情報を閲覧・取得できるようになります。

会員登録(無料)
  • 路面店

東急大井町線『等々力駅』徒歩4分、飲食店のご相談可能な貸テナントのご紹介です。奥には閑静な住宅街が広がっており、近隣住民のリピーター獲得が期待できます。業種等、お気軽にお問合せください。

物件概要

会員登録(無料)をすることで
物件情報の全てがご覧いただけます。

会員登録(無料)をしていただくと、他社には出回っていない物件情報の収集、
非会員の方には閲覧できない詳細情報、物件資料のダウンロード、
地図での立地確認など会員限定公開情報を閲覧・取得できるようになります。

会員登録(無料)

地図

会員登録後にご覧いただけます。

会員登録(無料)
×
区分
新着・未公開物件情報

登録で 会員規約プライバシーポリシー に同意したものとします。

※必須

会員登録(無料)
物件詳細や公開情報がご覧になれます!