渋谷区広尾にある地下-1階の医院居抜き物件のご案内です。

ゲスト

営業時間:9:30~18:30(土日・祝日を除く)

ゲスト

渋谷区広尾にある地下-1階の医院居抜き物件のご案内です。

居抜き市場トップ 居抜き物件、貸店舗を探す 東京メトロ日比谷線 , 渋谷区 渋谷区広尾にある地下-1階の医院居抜き物件詳細

東京メトロ日比谷線

広尾駅

徒歩4

所在地

渋谷区広尾・・・詳細は

医院の居抜き物件の内装
医院の居抜き物件の内装

ログイン後に

物件情報の全てがご覧いただけます。

会員登録(無料)
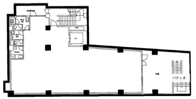
広尾の居抜き店舗の平面図

ログイン後に

物件情報の全てがご覧いただけます。

会員登録(無料)
医院の居抜き物件のエントランス

ログイン後に

物件情報の全てがご覧いただけます。

会員登録(無料)
広尾の医院居抜きの外観

ログイン後に

物件情報の全てがご覧いただけます。

会員登録(無料)
医院の居抜き物件の内装
医院の居抜き物件の内装
広尾の居抜き店舗の平面図
医院の居抜き物件のエントランス
広尾の医院居抜きの外観
賃料

1,804,100円(税込)

階数/面積

-1F / 54.67坪 (180.76㎡)

敷金・保証金

7ヶ月分

造作代金

相談

飲食条件

飲食不可

物件タイプ/現業態

居抜き / 医院

※会員限定の
情報
ございます。

会員限定の情報がございます。

会員登録(無料)をしていただくと、 物件詳細、物件資料のダウンロード、地図での立地確認など 会員限定の公開情報を閲覧・取得できるようになります。

会員登録(無料)

東京メトロ『広尾駅』徒歩4分、美容クリニック居抜き物件のご案内です。なかなか出ない50坪超の大箱物件です。エステサロン等の美容系テナントの開業にもおすすめです。諸条件等、お気軽にお問合せください。

物件概要

会員登録(無料)をすることで
物件情報の全てがご覧いただけます。

会員登録(無料)をしていただくと、他社には出回っていない物件情報の収集、
非会員の方には閲覧できない詳細情報、物件資料のダウンロード、
地図での立地確認など会員限定公開情報を閲覧・取得できるようになります。

会員登録(無料)

地図

会員登録後にご覧いただけます。

会員登録(無料)
×
区分
新着・未公開物件情報

登録で 会員規約プライバシーポリシー に同意したものとします。

※必須

会員登録(無料)
物件詳細や公開情報がご覧になれます!