重飲食可能な1階路面の事務所仕様の物件のご案内です。

ゲスト

営業時間:9:30~18:30(土日・祝日を除く)

ゲスト

重飲食可能な1階路面の事務所仕様の物件のご案内です。

居抜き市場トップ 居抜き物件、貸店舗を探す 東武東上線 , 板橋区 重飲食可能な1階路面の事務所仕様の物件情報

東武東上線

中板橋駅

徒歩2

所在地

板橋区仲町・・・詳細は

中板橋の事務所仕様店舗物件の外観
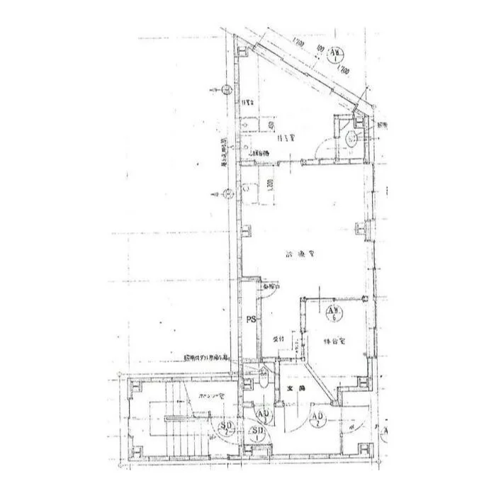
中板橋の事務所仕様店舗物件の平面図

ログイン後に

物件情報の全てがご覧いただけます。

会員登録(無料)
中板橋の事務所仕様物件の内装

ログイン後に

物件情報の全てがご覧いただけます。

会員登録(無料)
中板橋の事務所仕様店舗物件の内装

ログイン後に

物件情報の全てがご覧いただけます。

会員登録(無料)
中板橋の事務所仕様店舗物件の外観
中板橋の事務所仕様店舗物件の平面図
中板橋の事務所仕様物件の内装
中板橋の事務所仕様店舗物件の内装
賃料

385,000円(税込)

階数/面積

1F / 10.56坪 (34.93㎡)

敷金・保証金

8ヶ月分

飲食条件

重飲食可

物件タイプ/現業態

事務所仕様

※会員限定の
情報
ございます。

会員限定の情報がございます。

会員登録(無料)をしていただくと、 物件詳細、物件資料のダウンロード、地図での立地確認など 会員限定の公開情報を閲覧・取得できるようになります。

会員登録(無料)
  • 路面店

東武東上線『中板橋駅』徒歩2分、視認性良好な角地の路面店!飲食店ご相談可能な貸店舗のご案内です。以前は歯科クリニックとして使用されていました。新規開業のお客様にもおすすめな小箱物件です。諸条件等、お気軽にお問合せください。

物件概要

会員登録(無料)をすることで
物件情報の全てがご覧いただけます。

会員登録(無料)をしていただくと、他社には出回っていない物件情報の収集、
非会員の方には閲覧できない詳細情報、物件資料のダウンロード、
地図での立地確認など会員限定公開情報を閲覧・取得できるようになります。

会員登録(無料)

地図

会員登録後にご覧いただけます。

会員登録(無料)
×
区分
新着・未公開物件情報

登録で 会員規約プライバシーポリシー に同意したものとします。

※必須

会員登録(無料)
物件詳細や公開情報がご覧になれます!