川越駅、重飲食可能な1階の居抜き店舗のご案内です。

ゲスト

営業時間:9:30~18:30(土日・祝日を除く)

ゲスト

川越駅、重飲食可能な1階の居抜き店舗のご案内です。

居抜き市場トップ 居抜き物件、貸店舗を探す 東武東上線 , 川越市 川越駅、重飲食可能な1階の居抜き店舗詳細

東武東上線

川越駅

徒歩3

所在地

川越市脇田本町・・・詳細は

川越の居抜き店舗の内装
川越の居酒屋居抜きのその他

ログイン後に

物件情報の全てがご覧いただけます。

会員登録(無料)
居酒屋の居抜き物件の内装

ログイン後に

物件情報の全てがご覧いただけます。

会員登録(無料)
川越の居酒屋居抜きの内装

ログイン後に

物件情報の全てがご覧いただけます。

会員登録(無料)
川越の居抜き店舗の内装

ログイン後に

物件情報の全てがご覧いただけます。

会員登録(無料)
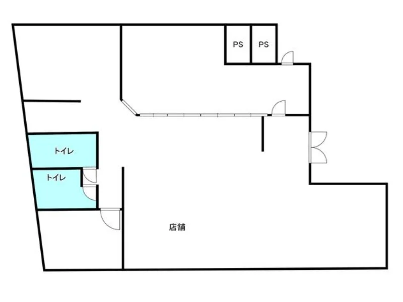
川越の居酒屋居抜きの平面図

ログイン後に

物件情報の全てがご覧いただけます。

会員登録(無料)
川越の居抜き店舗の内装
川越の居酒屋居抜きのその他
居酒屋の居抜き物件の内装
川越の居酒屋居抜きの内装
川越の居抜き店舗の内装
川越の居酒屋居抜きの平面図
賃料

385,000円(税込)

階数/面積

1F / 34.99坪 (115.7㎡)

敷金・保証金

4ヶ月分

造作代金

相談

飲食条件

重飲食可

物件タイプ/現業態

居抜き / 居酒屋

※会員限定の
情報
ございます。

会員限定の情報がございます。

会員登録(無料)をしていただくと、 物件詳細、物件資料のダウンロード、地図での立地確認など 会員限定の公開情報を閲覧・取得できるようになります。

会員登録(無料)

東武東上線『川越駅』徒歩3分、人気の川越エリアから居酒屋居抜き物件のご紹介です。店内はおしゃれで落ち着いた雰囲気の内装!約35坪の広さでゆったりとくつろげる空間です。ダイニングバーにもおすすめです。業種等、お気軽にお問合せください。

物件概要

会員登録(無料)をすることで
物件情報の全てがご覧いただけます。

会員登録(無料)をしていただくと、他社には出回っていない物件情報の収集、
非会員の方には閲覧できない詳細情報、物件資料のダウンロード、
地図での立地確認など会員限定公開情報を閲覧・取得できるようになります。

会員登録(無料)

地図

会員登録後にご覧いただけます。

会員登録(無料)
×
区分
新着・未公開物件情報

登録で 会員規約プライバシーポリシー に同意したものとします。

※必須

会員登録(無料)
物件詳細や公開情報がご覧になれます!