亀戸駅徒歩4分のスケルトン物件のご案内です。

ゲスト

営業時間:9:30~18:30(土日・祝日を除く)

ゲスト

亀戸駅徒歩4分のスケルトン物件のご案内です。

居抜き市場トップ 居抜き物件、貸店舗を探す JR中央・総武線 , 江東区 亀戸駅徒歩4分のスケルトン物件情報

JR中央・総武線

亀戸駅

徒歩4

所在地

江東区亀戸・・・詳細は

亀戸のスケルトン物件の外観
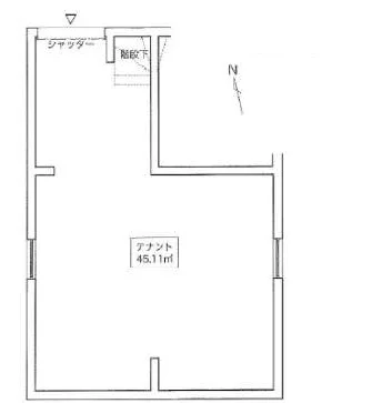
亀戸のスケルトン店舗物件の平面図

ログイン後に

物件情報の全てがご覧いただけます。

会員登録(無料)
亀戸のスケルトン物件の地図

ログイン後に

物件情報の全てがご覧いただけます。

会員登録(無料)
亀戸のスケルトン物件の外観
亀戸のスケルトン店舗物件の平面図
亀戸のスケルトン物件の地図
賃料

310,000円(税込)

階数/面積

1F / 13.64坪 (45.11㎡)

敷金・保証金

6ヶ月分

飲食条件

軽飲食可

物件タイプ/現業態

スケルトン

※会員限定の
情報
ございます。

会員限定の情報がございます。

会員登録(無料)をしていただくと、 物件詳細、物件資料のダウンロード、地図での立地確認など 会員限定の公開情報を閲覧・取得できるようになります。

会員登録(無料)

JR総武線『亀戸駅』徒歩4分、軽飲食相談可能な貸店舗のご紹介です。地域住民や買い物客等で賑わう「亀戸中央通商店街」に面する建物の1階路面貸店舗で、地域住民の集客が期待できます。詳細はレスタンダードまでお気軽にお問い合わせください。

物件概要

会員登録(無料)をすることで
物件情報の全てがご覧いただけます。

会員登録(無料)をしていただくと、他社には出回っていない物件情報の収集、
非会員の方には閲覧できない詳細情報、物件資料のダウンロード、
地図での立地確認など会員限定公開情報を閲覧・取得できるようになります。

会員登録(無料)

地図

会員登録後にご覧いただけます。

会員登録(無料)
×
区分
新着・未公開物件情報

登録で 会員規約プライバシーポリシー に同意したものとします。

※必須

会員登録(無料)
物件詳細や公開情報がご覧になれます!