自由が丘駅徒歩5分のスケルトン物件のご案内です。

ゲスト

営業時間:9:30~18:30(土日・祝日を除く)

ゲスト

自由が丘駅徒歩5分のスケルトン物件のご案内です。

居抜き市場トップ 居抜き物件、貸店舗を探す 東急東横線 , 世田谷区 自由が丘駅徒歩5分のスケルトン物件情報

東急東横線

自由が丘駅

徒歩5

所在地

世田谷区奥沢・・・詳細は

貸店舗(スケルトン)の外観
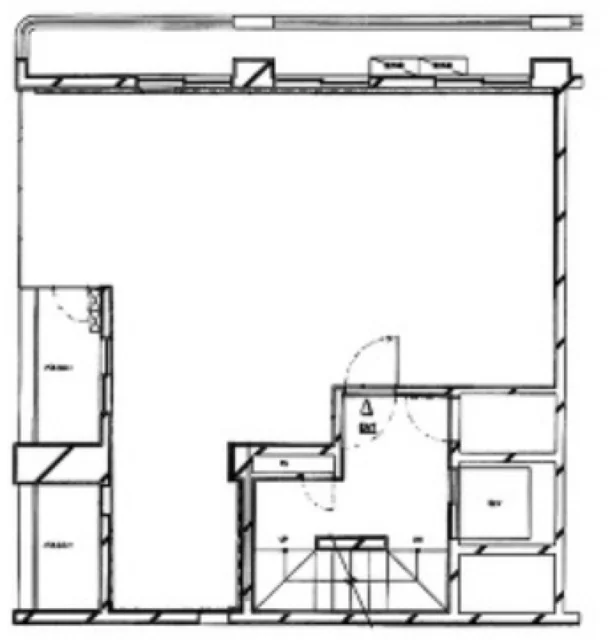
自由が丘のスケルトン店舗物件の平面図

ログイン後に

物件情報の全てがご覧いただけます。

会員登録(無料)
自由が丘のスケルトン店舗物件の内装

ログイン後に

物件情報の全てがご覧いただけます。

会員登録(無料)
自由が丘のスケルトン物件の内装

ログイン後に

物件情報の全てがご覧いただけます。

会員登録(無料)
貸店舗(スケルトン)の外観
自由が丘のスケルトン店舗物件の平面図
自由が丘のスケルトン店舗物件の内装
自由が丘のスケルトン物件の内装
賃料

385,000円(税込)

階数/面積

4F / 18.78坪 (62.1㎡)

敷金・保証金

5ヶ月分

飲食条件

軽飲食可

物件タイプ/現業態

スケルトン

※会員限定の
情報
ございます。

会員限定の情報がございます。

会員登録(無料)をしていただくと、 物件詳細、物件資料のダウンロード、地図での立地確認など 会員限定の公開情報を閲覧・取得できるようになります。

会員登録(無料)

複数路線利用可能『自由が丘駅』徒歩6分、人気エリアから美容室やエステサロンにおすすめな貸テナントのご紹介です。学園通りから1本脇道に入った落ち着いた立地!洗練されたお店と閑静な住宅街が共存する奥沢エリアで開業のチャンスです。諸条件等、お気軽にお問合せください。

物件概要

会員登録(無料)をすることで
物件情報の全てがご覧いただけます。

会員登録(無料)をしていただくと、他社には出回っていない物件情報の収集、
非会員の方には閲覧できない詳細情報、物件資料のダウンロード、
地図での立地確認など会員限定公開情報を閲覧・取得できるようになります。

会員登録(無料)

地図

会員登録後にご覧いただけます。

会員登録(無料)
×
区分
新着・未公開物件情報

登録で 会員規約プライバシーポリシー に同意したものとします。

※必須

会員登録(無料)
物件詳細や公開情報がご覧になれます!