代官山駅徒歩3分の自由に造作が可能なスケルトン物件のご案内です。

ゲスト

営業時間:9:30~18:30(土日・祝日を除く)

ゲスト

代官山駅徒歩3分の自由に造作が可能なスケルトン物件のご案内です。

居抜き市場トップ 居抜き物件、貸店舗を探す 東急東横線 , 渋谷区 代官山駅徒歩3分の自由に造作が可能なスケルトン物件詳細

東急東横線

代官山駅

徒歩3

所在地

渋谷区代官山町・・・詳細は

代官山のスケルトン物件の外観
貸店舗(スケルトン)の外観

ログイン後に

物件情報の全てがご覧いただけます。

会員登録(無料)
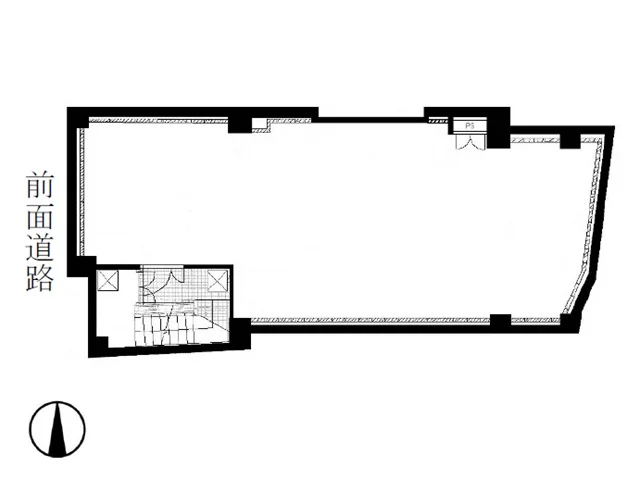
貸店舗(スケルトン)の平面図

ログイン後に

物件情報の全てがご覧いただけます。

会員登録(無料)
代官山のスケルトン物件の外観
貸店舗(スケルトン)の外観
貸店舗(スケルトン)の平面図
賃料

698,500円(税込)

階数/面積

-1F / 27.64坪 (91.39㎡)

敷金・保証金

10ヶ月分

飲食条件

飲食可

物件タイプ/現業態

スケルトン

※会員限定の
情報
ございます。

会員限定の情報がございます。

会員登録(無料)をしていただくと、 物件詳細、物件資料のダウンロード、地図での立地確認など 会員限定の公開情報を閲覧・取得できるようになります。

会員登録(無料)

東急東横線『代官山駅』徒歩3分、駅近の好立地から飲食店のご相談可能な貸店舗のご紹介です。人気の代官山通りに面したビル地下1階店舗!専用階段もございます。内装デザイン自由なスケルトン引き渡しになります。諸条件等、お気軽にお問合せください。

物件概要

会員登録(無料)をすることで
物件情報の全てがご覧いただけます。

会員登録(無料)をしていただくと、他社には出回っていない物件情報の収集、
非会員の方には閲覧できない詳細情報、物件資料のダウンロード、
地図での立地確認など会員限定公開情報を閲覧・取得できるようになります。

会員登録(無料)

地図

会員登録後にご覧いただけます。

会員登録(無料)
×
区分
新着・未公開物件情報

登録で 会員規約プライバシーポリシー に同意したものとします。

※必須

会員登録(無料)
物件詳細や公開情報がご覧になれます!