吉祥寺駅徒歩2分のスケルトン店舗物件のご案内です。

ゲスト

営業時間:9:30~18:30(土日・祝日を除く)

ゲスト

吉祥寺駅徒歩2分のスケルトン店舗物件のご案内です。

居抜き市場トップ 居抜き物件、貸店舗を探す JR中央線 , 武蔵野市 吉祥寺駅徒歩2分のスケルトン店舗物件詳細

JR中央線

吉祥寺駅

徒歩2

所在地

武蔵野市吉祥寺本町・・・詳細は

吉祥寺のスケルトン店舗物件のエントランス
貸店舗(スケルトン)の外観

ログイン後に

物件情報の全てがご覧いただけます。

会員登録(無料)
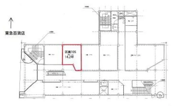
吉祥寺のスケルトン店舗物件の平面図

ログイン後に

物件情報の全てがご覧いただけます。

会員登録(無料)
吉祥寺のスケルトン店舗物件のエントランス
貸店舗(スケルトン)の外観
吉祥寺のスケルトン店舗物件の平面図
賃料

781,000円(税込)

階数/面積

1F / 14.19坪 (46.94㎡)

敷金・保証金

700万円

飲食条件

軽飲食可

物件タイプ/現業態

スケルトン

※会員限定の
情報
ございます。

会員限定の情報がございます。

会員登録(無料)をしていただくと、 物件詳細、物件資料のダウンロード、地図での立地確認など 会員限定の公開情報を閲覧・取得できるようになります。

会員登録(無料)

【吉祥寺ダイヤ街】JR中央線・京王井の頭線『吉祥寺駅』徒歩2分、人気の絶えない吉祥寺エリアから軽飲食のご相談可能な貸テナントのご紹介です。駅北口から続くアーケード商店街に面した「吉祥寺レンガ館モール」内の店舗!曜日や時間帯問わず多くに人で賑わうエリアで出店のチャンスです。

物件概要

会員登録(無料)をすることで
物件情報の全てがご覧いただけます。

会員登録(無料)をしていただくと、他社には出回っていない物件情報の収集、
非会員の方には閲覧できない詳細情報、物件資料のダウンロード、
地図での立地確認など会員限定公開情報を閲覧・取得できるようになります。

会員登録(無料)

地図

会員登録後にご覧いただけます。

会員登録(無料)
×
区分
新着・未公開物件情報

登録で 会員規約プライバシーポリシー に同意したものとします。

※必須

会員登録(無料)
物件詳細や公開情報がご覧になれます!