道路に面した1階のスケルトン貸店舗・テナント物件のご案内です。

ゲスト

営業時間:9:30~18:30(土日・祝日を除く)

ゲスト

道路に面した1階のスケルトン貸店舗・テナント物件のご案内です。

居抜き市場トップ 居抜き物件、貸店舗を探す 東京メトロ南北線 , 港区 道路に面した1階のスケルトン貸店舗・テナント物件詳細

東京メトロ南北線

麻布十番駅

徒歩1

所在地

港区東麻布・・・詳細は

貸店舗(スケルトン)のエントランス
貸店舗(スケルトン)の内装

ログイン後に

物件情報の全てがご覧いただけます。

会員登録(無料)
貸店舗(スケルトン)の外観

ログイン後に

物件情報の全てがご覧いただけます。

会員登録(無料)
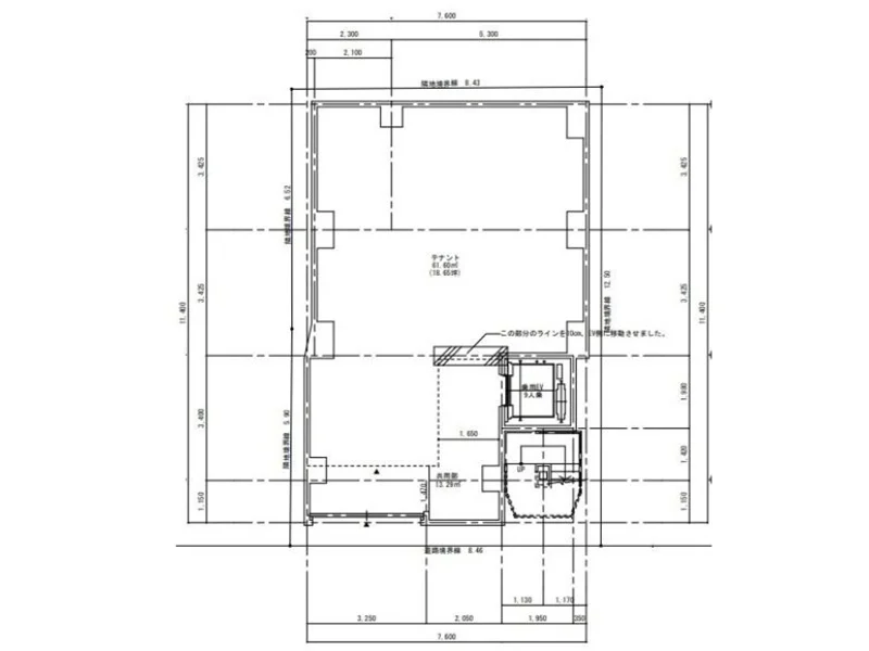
麻布十番のスケルトン物件の平面図

ログイン後に

物件情報の全てがご覧いただけます。

会員登録(無料)
貸店舗(スケルトン)のエントランス
貸店舗(スケルトン)の内装
貸店舗(スケルトン)の外観
麻布十番のスケルトン物件の平面図
賃料

762,000円(税込)

階数/面積

1F / 18.61坪 (61.52㎡)

敷金・保証金

10ヶ月分

飲食条件

飲食可

物件タイプ/現業態

スケルトン

※会員限定の
情報
ございます。

会員限定の情報がございます。

会員登録(無料)をしていただくと、 物件詳細、物件資料のダウンロード、地図での立地確認など 会員限定の公開情報を閲覧・取得できるようになります。

会員登録(無料)
  • 路面店

人気の『麻布十番駅』徒歩1分、飲食店ご相談可能な貸店舗のご紹介です。バーやカフェなど軽飲食の他、美容サロン、ジムなどにもおすすめ!麻布通りからも視認可能な1階路面店です。諸条件等、お気軽にお問合せください。

物件概要

会員登録(無料)をすることで
物件情報の全てがご覧いただけます。

会員登録(無料)をしていただくと、他社には出回っていない物件情報の収集、
非会員の方には閲覧できない詳細情報、物件資料のダウンロード、
地図での立地確認など会員限定公開情報を閲覧・取得できるようになります。

会員登録(無料)

地図

会員登録後にご覧いただけます。

会員登録(無料)
×
区分
新着・未公開物件情報

登録で 会員規約プライバシーポリシー に同意したものとします。

※必須

会員登録(無料)
物件詳細や公開情報がご覧になれます!