道路に面した1階のスケルトン貸店舗・テナント物件のご案内です。

ゲスト

営業時間:9:30~18:30(土日・祝日を除く)

ゲスト

道路に面した1階のスケルトン貸店舗・テナント物件のご案内です。

居抜き市場トップ 居抜き物件、貸店舗を探す 小田急小田原線 , 渋谷区 道路に面した1階のスケルトン貸店舗・テナント物件詳細

小田急小田原線

東北沢駅

徒歩3

所在地

渋谷区大山町・・・詳細は

東北沢のスケルトン店舗物件の外観
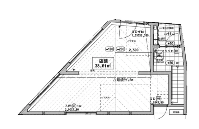
東北沢のスケルトン物件の平面図

ログイン後に

物件情報の全てがご覧いただけます。

会員登録(無料)
東北沢のスケルトン店舗物件の内装

ログイン後に

物件情報の全てがご覧いただけます。

会員登録(無料)
東北沢のスケルトン物件の内装

ログイン後に

物件情報の全てがご覧いただけます。

会員登録(無料)
東北沢のスケルトン店舗物件の外観
東北沢のスケルトン物件の平面図
東北沢のスケルトン店舗物件の内装
東北沢のスケルトン物件の内装
賃料

495,000円(税込)

階数/面積

1F / 11.67坪 (38.6㎡)

敷金・保証金

5ヶ月分

飲食条件

軽飲食可

物件タイプ/現業態

スケルトン

※会員限定の
情報
ございます。

会員限定の情報がございます。

会員登録(無料)をしていただくと、 物件詳細、物件資料のダウンロード、地図での立地確認など 会員限定の公開情報を閲覧・取得できるようになります。

会員登録(無料)
  • 路面店

【新築】小田急小田原線『東北沢駅』徒歩3分、交差点角地で視認性良好!重飲食店のご相談可能な貸テナントのご紹介です。高級住宅街として知られるエリアでもあり、人口が多く集客が期待できます。飲食店はもちろん、美容室やクリニックなどにもおすすめ!諸条件等、お気軽にお問合せください。

物件概要

会員登録(無料)をすることで
物件情報の全てがご覧いただけます。

会員登録(無料)をしていただくと、他社には出回っていない物件情報の収集、
非会員の方には閲覧できない詳細情報、物件資料のダウンロード、
地図での立地確認など会員限定公開情報を閲覧・取得できるようになります。

会員登録(無料)

地図

会員登録後にご覧いただけます。

会員登録(無料)
×
区分
新着・未公開物件情報

登録で 会員規約プライバシーポリシー に同意したものとします。

※必須

会員登録(無料)
物件詳細や公開情報がご覧になれます!