渋谷駅徒歩5分の事務所仕様の物件のご案内です。

ゲスト

営業時間:9:30~18:30(土日・祝日を除く)

ゲスト

渋谷駅徒歩5分の事務所仕様の物件のご案内です。

居抜き市場トップ 居抜き物件、貸店舗を探す JR山手線 , 渋谷区 渋谷駅徒歩5分の事務所仕様の物件情報

JR山手線

渋谷駅

徒歩5

所在地

渋谷区道玄坂・・・詳細は

渋谷の事務所仕様店舗物件の外観
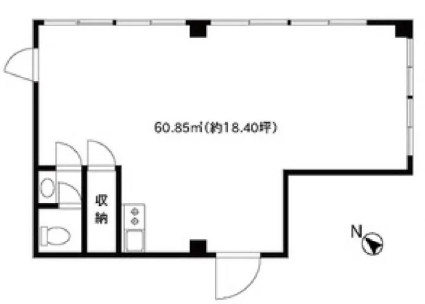
貸店舗(事務所仕様)の平面図

ログイン後に

物件情報の全てがご覧いただけます。

会員登録(無料)
渋谷の事務所仕様物件の地図

ログイン後に

物件情報の全てがご覧いただけます。

会員登録(無料)
渋谷の事務所仕様店舗物件の外観
貸店舗(事務所仕様)の平面図
渋谷の事務所仕様物件の地図
賃料

770,000円(税込)

階数/面積

2F / 18.4坪 (60.85㎡)

敷金・保証金

6ヶ月分

飲食条件

飲食可

物件タイプ/現業態

事務所仕様

※会員限定の
情報
ございます。

会員限定の情報がございます。

会員登録(無料)をしていただくと、 物件詳細、物件資料のダウンロード、地図での立地確認など 会員限定の公開情報を閲覧・取得できるようになります。

会員登録(無料)

複数路線利用可能『渋谷駅』から徒歩5分、飲食店のご相談可能な事務所仕様物件のご紹介です。神泉駅も徒歩圏内のビルの2階区画で、周辺にはオフィスビルや居酒屋を中心とした飲食店も複数営業中で。仕事帰りのビジネスパーソンを狙った店舗開業をご検討されている方におすすめです。出店可能業態等の詳細はお気軽にお問い合わせください。

物件概要

会員登録(無料)をすることで
物件情報の全てがご覧いただけます。

会員登録(無料)をしていただくと、他社には出回っていない物件情報の収集、
非会員の方には閲覧できない詳細情報、物件資料のダウンロード、
地図での立地確認など会員限定公開情報を閲覧・取得できるようになります。

会員登録(無料)

地図

会員登録後にご覧いただけます。

会員登録(無料)
×
区分
新着・未公開物件情報

登録で 会員規約プライバシーポリシー に同意したものとします。

※必須

会員登録(無料)
物件詳細や公開情報がご覧になれます!