広尾駅、重飲食可能な1階のスケルトン店舗物件のご案内です。

ゲスト

営業時間:9:30~18:30(土日・祝日を除く)

ゲスト

広尾駅、重飲食可能な1階のスケルトン店舗物件のご案内です。

居抜き市場トップ 居抜き物件、貸店舗を探す 東京メトロ日比谷線 , 港区 広尾駅、重飲食可能な1階のスケルトン店舗物件情報

東京メトロ日比谷線

広尾駅

徒歩13

所在地

港区白金・・・詳細は

広尾のスケルトン物件の外観
広尾のスケルトン店舗物件の外観

ログイン後に

物件情報の全てがご覧いただけます。

会員登録(無料)
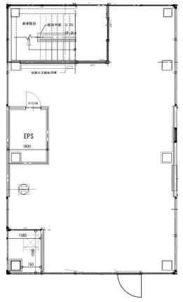
広尾のスケルトン店舗物件の平面図

ログイン後に

物件情報の全てがご覧いただけます。

会員登録(無料)
広尾のスケルトン物件の外観
広尾のスケルトン店舗物件の外観
広尾のスケルトン店舗物件の平面図
賃料

598,000円(税込)

階数/面積

1F / 17.19坪 (56.83㎡)

敷金・保証金

10ヶ月分

飲食条件

重飲食可

物件タイプ/現業態

スケルトン

※会員限定の
情報
ございます。

会員限定の情報がございます。

会員登録(無料)をしていただくと、 物件詳細、物件資料のダウンロード、地図での立地確認など 会員限定の公開情報を閲覧・取得できるようになります。

会員登録(無料)

【プラチナ通り至近】『広尾駅』『白金台駅』2駅からアクセス可能、道路前面ガラス張り!重飲食のご相談も可能な貸店舗のご案内です。内装レイアウト自由自在なスケルトンでの引渡しです。エアコン・ファンが残置でございます。諸条件等、お気軽にお問合せください。

物件概要

会員登録(無料)をすることで
物件情報の全てがご覧いただけます。

会員登録(無料)をしていただくと、他社には出回っていない物件情報の収集、
非会員の方には閲覧できない詳細情報、物件資料のダウンロード、
地図での立地確認など会員限定公開情報を閲覧・取得できるようになります。

会員登録(無料)

地図

会員登録後にご覧いただけます。

会員登録(無料)
×
区分
新着・未公開物件情報

登録で 会員規約プライバシーポリシー に同意したものとします。

※必須

会員登録(無料)
物件詳細や公開情報がご覧になれます!