東大和市駅徒歩10分の事務所仕様の店舗物件のご案内です。

ゲスト

営業時間:9:30~18:30(土日・祝日を除く)

ゲスト

東大和市駅徒歩10分の事務所仕様の店舗物件のご案内です。

居抜き市場トップ 居抜き物件、貸店舗を探す 西武拝島線 , 東大和市 東大和市駅徒歩10分の事務所仕様の店舗物件詳細

西武拝島線

東大和市駅

徒歩10

バス乗車3分

「南街入口」

徒歩1分

所在地

東大和市南街・・・詳細は

貸店舗(事務所仕様)の外観
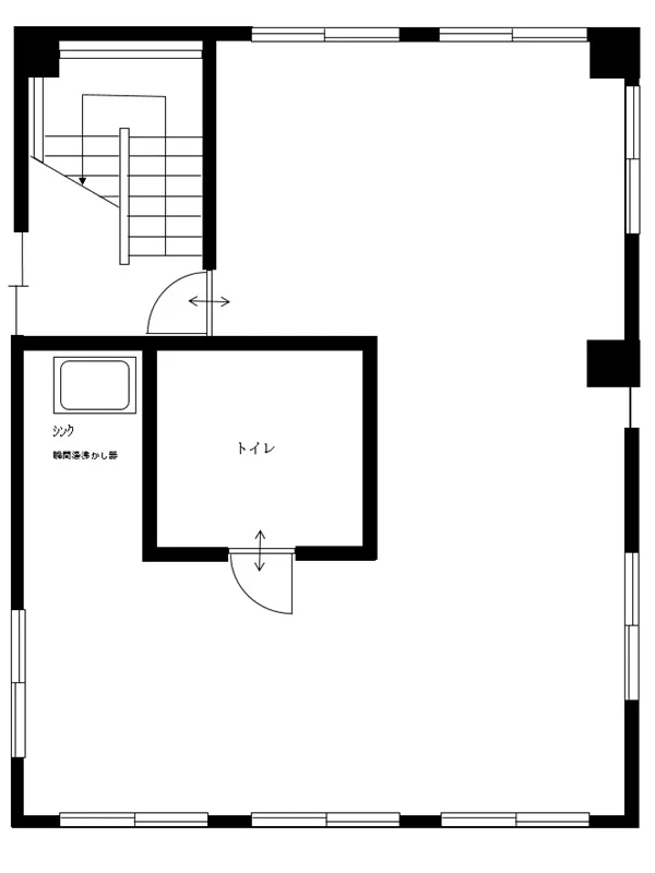
東大和市の事務所仕様物件の平面図

ログイン後に

物件情報の全てがご覧いただけます。

会員登録(無料)
貸店舗(事務所仕様)の外観
東大和市の事務所仕様物件の平面図
賃料

130,000円(税込)

階数/面積

3F / 24.49坪 (80.96㎡)

敷金・保証金

3ヶ月分

飲食条件

飲食可

物件タイプ/現業態

事務所仕様

※会員限定の
情報
ございます。

会員限定の情報がございます。

会員登録(無料)をしていただくと、 物件詳細、物件資料のダウンロード、地図での立地確認など 会員限定の公開情報を閲覧・取得できるようになります。

会員登録(無料)

西武拝島線『東大和市』徒歩10分、飲食店のご相談可能な貸店舗のご紹介です。青梅街道に面したビル3階店舗!コインパーキングに隣接しており、お車でのアクセスも可能です。他区画ではカラオケ居酒屋が営業中!周辺は住居が多く、地域密着型店舗に最適です。諸条件等、お気軽にお問合せください。

物件概要

会員登録(無料)をすることで
物件情報の全てがご覧いただけます。

会員登録(無料)をしていただくと、他社には出回っていない物件情報の収集、
非会員の方には閲覧できない詳細情報、物件資料のダウンロード、
地図での立地確認など会員限定公開情報を閲覧・取得できるようになります。

会員登録(無料)

地図

会員登録後にご覧いただけます。

会員登録(無料)
×
区分
新着・未公開物件情報

登録で 会員規約プライバシーポリシー に同意したものとします。

※必須

会員登録(無料)
物件詳細や公開情報がご覧になれます!