重飲食可能な1階路面のスケルトン物件のご案内です。

ゲスト

営業時間:9:30~18:30(土日・祝日を除く)

ゲスト

重飲食可能な1階路面のスケルトン物件のご案内です。

居抜き市場トップ 居抜き物件、貸店舗を探す 東急池上線 , 品川区 重飲食可能な1階路面のスケルトン物件情報

東急池上線

大崎広小路駅

徒歩3

所在地

品川区西五反田・・・詳細は

大崎広小路のスケルトン物件の内装
大崎広小路のスケルトン物件の内装

ログイン後に

物件情報の全てがご覧いただけます。

会員登録(無料)
大崎広小路のスケルトン店舗物件の外観

ログイン後に

物件情報の全てがご覧いただけます。

会員登録(無料)
大崎広小路のスケルトン店舗物件の外観

ログイン後に

物件情報の全てがご覧いただけます。

会員登録(無料)
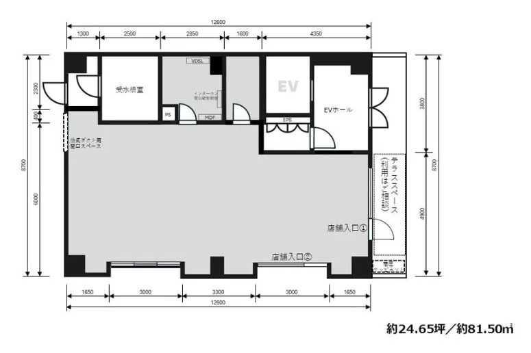
大崎広小路のスケルトン物件の平面図

ログイン後に

物件情報の全てがご覧いただけます。

会員登録(無料)
大崎広小路のスケルトン店舗物件の地図

ログイン後に

物件情報の全てがご覧いただけます。

会員登録(無料)
大崎広小路のスケルトン物件の内装
大崎広小路のスケルトン物件の内装
大崎広小路のスケルトン店舗物件の外観
大崎広小路のスケルトン店舗物件の外観
大崎広小路のスケルトン物件の平面図
大崎広小路のスケルトン店舗物件の地図
賃料

732,105円(税込)

階数/面積

1F / 24.24坪 (81.5㎡)

敷金・保証金

8ヶ月分

飲食条件

重飲食可

物件タイプ/現業態

スケルトン

※会員限定の
情報
ございます。

会員限定の情報がございます。

会員登録(無料)をしていただくと、 物件詳細、物件資料のダウンロード、地図での立地確認など 会員限定の公開情報を閲覧・取得できるようになります。

会員登録(無料)
  • 路面店

東急池上線『大崎広小路駅』徒歩3分、重飲食のご相談可能な貸テナントのご紹介です。内装レイアウト自由自在なスケルトン引き渡し!通り沿い1階路面店で視認性良好です。諸条件等、お気軽にお問い合わせください。

物件概要

会員登録(無料)をすることで
物件情報の全てがご覧いただけます。

会員登録(無料)をしていただくと、他社には出回っていない物件情報の収集、
非会員の方には閲覧できない詳細情報、物件資料のダウンロード、
地図での立地確認など会員限定公開情報を閲覧・取得できるようになります。

会員登録(無料)

地図

会員登録後にご覧いただけます。

会員登録(無料)
×
区分
新着・未公開物件情報

登録で 会員規約プライバシーポリシー に同意したものとします。

※必須

会員登録(無料)
物件詳細や公開情報がご覧になれます!