1階路面、川口市東川口のスケルトン物件のご案内です。

ゲスト

営業時間:9:30~18:30(土日・祝日を除く)

ゲスト

1階路面、川口市東川口のスケルトン物件のご案内です。

居抜き市場トップ 居抜き物件、貸店舗を探す JR武蔵野線 , 川口市 1階路面、川口市東川口のスケルトン物件詳細

JR武蔵野線

東川口駅

徒歩7

所在地

川口市東川口・・・詳細は

東川口のスケルトン物件の外観
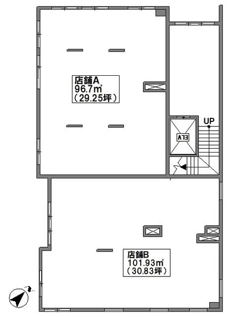
貸店舗(スケルトン)の平面図

ログイン後に

物件情報の全てがご覧いただけます。

会員登録(無料)
東川口のスケルトン物件の内装

ログイン後に

物件情報の全てがご覧いただけます。

会員登録(無料)
東川口のスケルトン物件の外観
貸店舗(スケルトン)の平面図
東川口のスケルトン物件の内装
賃料

482,900円(税込)

階数/面積

1F / 29.25坪 (96.7㎡)

敷金・保証金

6ヶ月分

飲食条件

飲食可(重飲食不可)

物件タイプ/現業態

スケルトン

※会員限定の
情報
ございます。

会員限定の情報がございます。

会員登録(無料)をしていただくと、 物件詳細、物件資料のダウンロード、地図での立地確認など 会員限定の公開情報を閲覧・取得できるようになります。

会員登録(無料)
  • 路面店

【新築】JR武蔵野線『東川口駅』徒歩7分、飲食店のご相談可能な貸テナントのご紹介です。2024年11月竣工の新築スケルトン物件!けやき通り沿いの視認性良好な1階路面店です。カフェやテイクアウト店などにおすすめ!諸条件等、お気軽にお問合せ

物件概要

会員登録(無料)をすることで
物件情報の全てがご覧いただけます。

会員登録(無料)をしていただくと、他社には出回っていない物件情報の収集、
非会員の方には閲覧できない詳細情報、物件資料のダウンロード、
地図での立地確認など会員限定公開情報を閲覧・取得できるようになります。

会員登録(無料)

地図

会員登録後にご覧いただけます。

会員登録(無料)
×
区分
新着・未公開物件情報

登録で 会員規約プライバシーポリシー に同意したものとします。

※必須

会員登録(無料)
物件詳細や公開情報がご覧になれます!