恵比寿駅徒歩2分の自由に造作が可能なスケルトン物件のご案内です。

ゲスト

営業時間:9:30~18:30(土日・祝日を除く)

ゲスト

恵比寿駅徒歩2分の自由に造作が可能なスケルトン物件のご案内です。

居抜き市場トップ 居抜き物件、貸店舗を探す JR山手線 , 渋谷区 恵比寿駅徒歩2分の自由に造作が可能なスケルトン物件詳細

JR山手線

恵比寿駅

徒歩2

所在地

渋谷区恵比寿・・・詳細は

貸店舗(スケルトン)の内装
恵比寿のスケルトン物件のエントランス

ログイン後に

物件情報の全てがご覧いただけます。

会員登録(無料)
恵比寿のスケルトン物件の外観

ログイン後に

物件情報の全てがご覧いただけます。

会員登録(無料)
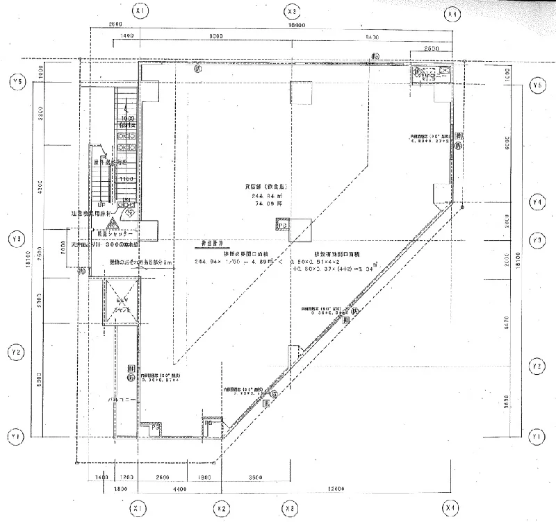
恵比寿のスケルトン物件の平面図

ログイン後に

物件情報の全てがご覧いただけます。

会員登録(無料)
貸店舗(スケルトン)の内装
恵比寿のスケルトン物件のエントランス
恵比寿のスケルトン物件の外観
恵比寿のスケルトン物件の平面図
賃料

2,958,450円(税込)

階数/面積

2F / 81.49坪 (269.42㎡)

敷金・保証金

14ヶ月分

飲食条件

飲食可

物件タイプ/現業態

スケルトン

※会員限定の
情報
ございます。

会員限定の情報がございます。

会員登録(無料)をしていただくと、 物件詳細、物件資料のダウンロード、地図での立地確認など 会員限定の公開情報を閲覧・取得できるようになります。

会員登録(無料)

JR『恵比寿駅』徒歩2分、飲食店ご相談可能な貸店舗のご案内です。以前は居酒屋が営業していました。内装レイアウト自由自在なスケルトンでの引渡しです。恵比寿通りに面する前面はガラス張りで視認性良好です。諸条件等、お気軽にお問合せください。

物件概要

会員登録(無料)をすることで
物件情報の全てがご覧いただけます。

会員登録(無料)をしていただくと、他社には出回っていない物件情報の収集、
非会員の方には閲覧できない詳細情報、物件資料のダウンロード、
地図での立地確認など会員限定公開情報を閲覧・取得できるようになります。

会員登録(無料)

地図

会員登録後にご覧いただけます。

会員登録(無料)
×
区分
新着・未公開物件情報

登録で 会員規約プライバシーポリシー に同意したものとします。

※必須

会員登録(無料)
物件詳細や公開情報がご覧になれます!