森下駅徒歩1分のスケルトン店舗物件のご案内です。

ゲスト

営業時間:9:30~18:30(土日・祝日を除く)

ゲスト

森下駅徒歩1分のスケルトン店舗物件のご案内です。

居抜き市場トップ 居抜き物件、貸店舗を探す 都営新宿線 , 江東区 森下駅徒歩1分のスケルトン店舗物件詳細

都営新宿線

森下駅

徒歩1

所在地

江東区森下・・・詳細は

森下のスケルトン物件の外観
森下のスケルトン物件の外観

ログイン後に

物件情報の全てがご覧いただけます。

会員登録(無料)
貸店舗(スケルトン)の内装

ログイン後に

物件情報の全てがご覧いただけます。

会員登録(無料)
森下のスケルトン物件の内装

ログイン後に

物件情報の全てがご覧いただけます。

会員登録(無料)
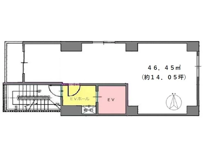
貸店舗(スケルトン)の平面図

ログイン後に

物件情報の全てがご覧いただけます。

会員登録(無料)
森下のスケルトン物件の地図

ログイン後に

物件情報の全てがご覧いただけます。

会員登録(無料)
森下のスケルトン物件の外観
森下のスケルトン物件の外観
貸店舗(スケルトン)の内装
森下のスケルトン物件の内装
貸店舗(スケルトン)の平面図
森下のスケルトン物件の地図
賃料

220,000円(税込)

階数/面積

2F / 14.05坪 (46.45㎡)

敷金・保証金

4ヶ月分

飲食条件

軽飲食可

物件タイプ/現業態

スケルトン

※会員限定の
情報
ございます。

会員限定の情報がございます。

会員登録(無料)をしていただくと、 物件詳細、物件資料のダウンロード、地図での立地確認など 会員限定の公開情報を閲覧・取得できるようになります。

会員登録(無料)

【新築】都営新宿線『森下駅』より徒歩1分、軽飲食相談可能なスケルトン貸店舗のご紹介です。交通量の多い幹線通り沿いの建物2階!2024年5月に完成したばかりの物件です。周辺には物販店や飲食店が立ち並んでおり、集客が期待できるエリアにございます。軽飲食店をはじめ、教室やサロンなど幅広い業態でご相談可能ですので、お気軽にお問合せください。

物件概要

会員登録(無料)をすることで
物件情報の全てがご覧いただけます。

会員登録(無料)をしていただくと、他社には出回っていない物件情報の収集、
非会員の方には閲覧できない詳細情報、物件資料のダウンロード、
地図での立地確認など会員限定公開情報を閲覧・取得できるようになります。

会員登録(無料)

地図

会員登録後にご覧いただけます。

会員登録(無料)
×
区分
新着・未公開物件情報

登録で 会員規約プライバシーポリシー に同意したものとします。

※必須

会員登録(無料)
物件詳細や公開情報がご覧になれます!