読売ランド前駅、造作無償の4階スナック・パブ居抜き店舗のご案内です。

ゲスト

営業時間:9:30~18:30(土日・祝日を除く)

ゲスト

読売ランド前駅、造作無償の4階スナック・パブ居抜き店舗のご案内です。

居抜き市場トップ 居抜き物件、貸店舗を探す 小田急小田原線 , 川崎市多摩区 読売ランド前駅、造作無償の4階スナック・パブ居抜き店舗情報

小田急小田原線

読売ランド前駅

徒歩1

所在地

川崎市多摩区西生田・・・詳細は

スナック・パブの居抜き物件の内装
スナック・パブの居抜き物件の内装

ログイン後に

物件情報の全てがご覧いただけます。

会員登録(無料)
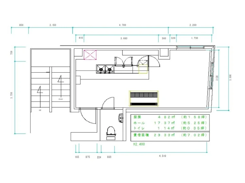
読売ランド前のスナック・パブ居抜きの平面図

ログイン後に

物件情報の全てがご覧いただけます。

会員登録(無料)
スナック・パブの居抜き物件の外観

ログイン後に

物件情報の全てがご覧いただけます。

会員登録(無料)
スナック・パブの居抜き物件の内装
スナック・パブの居抜き物件の内装
読売ランド前のスナック・パブ居抜きの平面図
スナック・パブの居抜き物件の外観
賃料

148,500円(税込)

階数/面積

4F / 7.05坪 (23.33㎡)

敷金・保証金

6ヶ月分

造作代金

無償譲渡

飲食条件

飲食可

物件タイプ/現業態

居抜き / スナック・パブ

※会員限定の
情報
ございます。

会員限定の情報がございます。

会員登録(無料)をしていただくと、 物件詳細、物件資料のダウンロード、地図での立地確認など 会員限定の公開情報を閲覧・取得できるようになります。

会員登録(無料)

小田急小田原線『読売ランド前駅』から徒歩1分、スナック・バーにおすすめな居抜き物件のご案内です。造作代無償のため、類似業態ご希望の方は初期費用を抑えての開業が可能です。地域密着型店舗を探しの方におすすめ!諸条件等、お気軽にお問合せください。

物件概要

会員登録(無料)をすることで
物件情報の全てがご覧いただけます。

会員登録(無料)をしていただくと、他社には出回っていない物件情報の収集、
非会員の方には閲覧できない詳細情報、物件資料のダウンロード、
地図での立地確認など会員限定公開情報を閲覧・取得できるようになります。

会員登録(無料)

地図

会員登録後にご覧いただけます。

会員登録(無料)
×
区分
新着・未公開物件情報

登録で 会員規約プライバシーポリシー に同意したものとします。

※必須

会員登録(無料)
物件詳細や公開情報がご覧になれます!