上板橋駅、1階路面のスケルトン店舗物件のご案内です。

ゲスト

営業時間:9:30~18:30(土日・祝日を除く)

ゲスト

上板橋駅、1階路面のスケルトン店舗物件のご案内です。

居抜き市場トップ 居抜き物件、貸店舗を探す 東武東上線 , 板橋区 上板橋駅、1階路面のスケルトン店舗物件情報

東武東上線

上板橋駅

徒歩3

所在地

板橋区上板橋・・・詳細は

上板橋のスケルトン店舗物件の外観
上板橋のスケルトン物件の外観

ログイン後に

物件情報の全てがご覧いただけます。

会員登録(無料)
上板橋のスケルトン物件の外観

ログイン後に

物件情報の全てがご覧いただけます。

会員登録(無料)
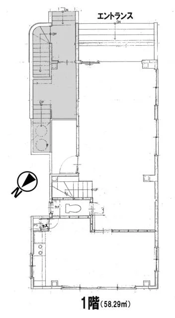
上板橋のスケルトン店舗物件の平面図

ログイン後に

物件情報の全てがご覧いただけます。

会員登録(無料)
上板橋のスケルトン店舗物件の外観
上板橋のスケルトン物件の外観
上板橋のスケルトン物件の外観
上板橋のスケルトン店舗物件の平面図
賃料

198,000円(税込)

階数/面積

1F / 17.63坪 (58.29㎡)

敷金・保証金

6ヶ月分

飲食条件

軽飲食可

物件タイプ/現業態

スケルトン

※会員限定の
情報
ございます。

会員限定の情報がございます。

会員登録(無料)をしていただくと、 物件詳細、物件資料のダウンロード、地図での立地確認など 会員限定の公開情報を閲覧・取得できるようになります。

会員登録(無料)
  • 路面店

東武東上線『上板橋駅』より徒歩3分、軽飲食相談可能な貸店舗のご紹介です。上板橋駅ホームから視認可能!駅から住宅街に繋がる動線上にあり、地元住民の集客も期待できるエリアにございます。軽飲食店をはじめ、美容サロンや教室など、様々な業態でご相談可能です。お気軽にお問合わせください。

物件概要

会員登録(無料)をすることで
物件情報の全てがご覧いただけます。

会員登録(無料)をしていただくと、他社には出回っていない物件情報の収集、
非会員の方には閲覧できない詳細情報、物件資料のダウンロード、
地図での立地確認など会員限定公開情報を閲覧・取得できるようになります。

会員登録(無料)

地図

会員登録後にご覧いただけます。

会員登録(無料)
×
区分
新着・未公開物件情報

登録で 会員規約プライバシーポリシー に同意したものとします。

※必須

会員登録(無料)
物件詳細や公開情報がご覧になれます!