松戸駅徒歩1分の自由に造作が可能なスケルトン物件のご案内です。

ゲスト

営業時間:9:30~18:30(土日・祝日を除く)

ゲスト

松戸駅徒歩1分の自由に造作が可能なスケルトン物件のご案内です。

居抜き市場トップ 居抜き物件、貸店舗を探す JR常磐線 , 松戸市 松戸駅徒歩1分の自由に造作が可能なスケルトン物件詳細

JR常磐線

松戸駅

徒歩1

所在地

松戸市本町・・・詳細は

松戸のスケルトン物件の外観
貸店舗(スケルトン)の外観

ログイン後に

物件情報の全てがご覧いただけます。

会員登録(無料)
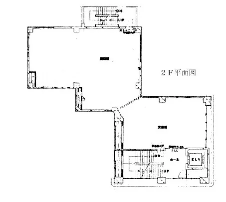
松戸のスケルトン物件の平面図

ログイン後に

物件情報の全てがご覧いただけます。

会員登録(無料)
松戸のスケルトン物件の外観
貸店舗(スケルトン)の外観
松戸のスケルトン物件の平面図
賃料

770,000円(税込)

階数/面積

2F / 49.83坪 (164.75㎡)

敷金・保証金

10ヶ月分

飲食条件

飲食可

物件タイプ/現業態

スケルトン

※会員限定の
情報
ございます。

会員限定の情報がございます。

会員登録(無料)をしていただくと、 物件詳細、物件資料のダウンロード、地図での立地確認など 会員限定の公開情報を閲覧・取得できるようになります。

会員登録(無料)

JR常磐線『松戸駅』徒歩1分、飲食業態相談可能なスケルトン物件のご紹介です。駅前ロータリーすぐと好立地の商業ビルテナント2階区画!面積は約164mmと広々。他フロアでは飲食店やカラオケ店や美容室などが営業中で、周辺でも多数飲食店が盛業中です。駅前好立地のテナントビルでの出店をご検討の方におすすめです。

物件概要

会員登録(無料)をすることで
物件情報の全てがご覧いただけます。

会員登録(無料)をしていただくと、他社には出回っていない物件情報の収集、
非会員の方には閲覧できない詳細情報、物件資料のダウンロード、
地図での立地確認など会員限定公開情報を閲覧・取得できるようになります。

会員登録(無料)

地図

会員登録後にご覧いただけます。

会員登録(無料)
×
区分
新着・未公開物件情報

登録で 会員規約プライバシーポリシー に同意したものとします。

※必須

会員登録(無料)
物件詳細や公開情報がご覧になれます!