道路に面した1階のスケルトン貸店舗・テナント物件のご案内です。

ゲスト

営業時間:9:30~18:30(土日・祝日を除く)

ゲスト

道路に面した1階のスケルトン貸店舗・テナント物件のご案内です。

居抜き市場トップ 居抜き物件、貸店舗を探す 東武伊勢崎線 , 足立区 道路に面した1階のスケルトン貸店舗・テナント物件詳細

東武伊勢崎線

梅島駅

徒歩1

所在地

足立区梅島・・・詳細は

梅島のスケルトン店舗物件の外観
梅島のスケルトン店舗物件の外観

ログイン後に

物件情報の全てがご覧いただけます。

会員登録(無料)
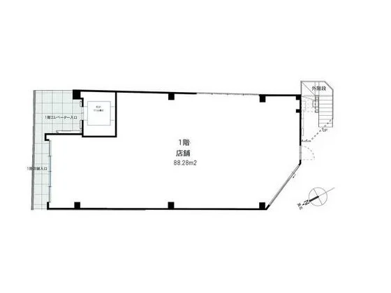
貸店舗(スケルトン)の平面図

ログイン後に

物件情報の全てがご覧いただけます。

会員登録(無料)
貸店舗(スケルトン)の地図

ログイン後に

物件情報の全てがご覧いただけます。

会員登録(無料)
梅島のスケルトン店舗物件の外観
梅島のスケルトン店舗物件の外観
貸店舗(スケルトン)の平面図
貸店舗(スケルトン)の地図
賃料

675,628円(税込)

階数/面積

1F / 26.7坪 (88.28㎡)

敷金・保証金

10ヶ月分

飲食条件

軽飲食可

物件タイプ/現業態

スケルトン

※会員限定の
情報
ございます。

会員限定の情報がございます。

会員登録(無料)をしていただくと、 物件詳細、物件資料のダウンロード、地図での立地確認など 会員限定の公開情報を閲覧・取得できるようになります。

会員登録(無料)
  • 路面店

【新築】東武伊勢崎線『梅島駅』徒歩1分、新築スケルトン物件のご紹介です。2024年12月末竣工予定の1階路面店で、周辺には飲食店をはじめ多くの店舗が営業中です。下町の雰囲気が残るエリアで、地域密着型の店舗開業をお考えの方は、ぜひお気軽にお問合せください。

物件概要

会員登録(無料)をすることで
物件情報の全てがご覧いただけます。

会員登録(無料)をしていただくと、他社には出回っていない物件情報の収集、
非会員の方には閲覧できない詳細情報、物件資料のダウンロード、
地図での立地確認など会員限定公開情報を閲覧・取得できるようになります。

会員登録(無料)

地図

会員登録後にご覧いただけます。

会員登録(無料)
×
区分
新着・未公開物件情報

登録で 会員規約プライバシーポリシー に同意したものとします。

※必須

会員登録(無料)
物件詳細や公開情報がご覧になれます!