石川町駅徒歩3分の物販居抜き物件のご案内です。

ゲスト

営業時間:9:30~18:30(土日・祝日を除く)

ゲスト

石川町駅徒歩3分の物販居抜き物件のご案内です。

居抜き市場トップ 居抜き物件、貸店舗を探す JR京浜東北・根岸線 , 横浜市中区 石川町駅徒歩3分の物販居抜き物件情報

JR京浜東北・根岸線

石川町駅

徒歩3

所在地

横浜市中区元町・・・詳細は

石川町の物販居抜きの内装
石川町の物販居抜きの内装

ログイン後に

物件情報の全てがご覧いただけます。

会員登録(無料)
石川町の居抜き店舗の内装

ログイン後に

物件情報の全てがご覧いただけます。

会員登録(無料)
石川町の物販居抜きの厨房

ログイン後に

物件情報の全てがご覧いただけます。

会員登録(無料)
物販の居抜き物件の外観

ログイン後に

物件情報の全てがご覧いただけます。

会員登録(無料)
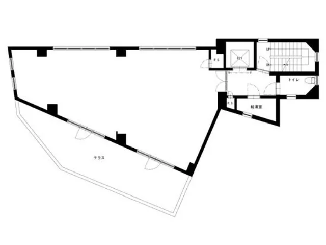
石川町の居抜き店舗の平面図

ログイン後に

物件情報の全てがご覧いただけます。

会員登録(無料)
石川町の物販居抜きの内装
石川町の物販居抜きの内装
石川町の居抜き店舗の内装
石川町の物販居抜きの厨房
物販の居抜き物件の外観
石川町の居抜き店舗の平面図
賃料

330,000円(税込)

階数/面積

4F / 29.58坪 (97.81㎡)

敷金・保証金

5ヶ月分

造作代金

相談

飲食条件

飲食可(重飲食不可)

物件タイプ/現業態

居抜き / 物販

※会員限定の
情報
ございます。

会員限定の情報がございます。

会員登録(無料)をしていただくと、 物件詳細、物件資料のダウンロード、地図での立地確認など 会員限定の公開情報を閲覧・取得できるようになります。

会員登録(無料)

JR京浜東北線『石川町駅』徒歩3分、アパレル店居抜き物件のご紹介です。元町交差点角地かつ元町通り入口の視認性良好なビル4階店舗!店内はブラック×レッドの内装で大人な雰囲気です。飲食店のご相談も可能ですので、業種等お気軽にお問い合わせください。

物件概要

会員登録(無料)をすることで
物件情報の全てがご覧いただけます。

会員登録(無料)をしていただくと、他社には出回っていない物件情報の収集、
非会員の方には閲覧できない詳細情報、物件資料のダウンロード、
地図での立地確認など会員限定公開情報を閲覧・取得できるようになります。

会員登録(無料)

地図

会員登録後にご覧いただけます。

会員登録(無料)
×
区分
新着・未公開物件情報

登録で 会員規約プライバシーポリシー に同意したものとします。

※必須

会員登録(無料)
物件詳細や公開情報がご覧になれます!