門前仲町駅徒歩1分の事務所仕様の店舗物件のご案内です。

ゲスト

営業時間:9:30~18:30(土日・祝日を除く)

ゲスト

門前仲町駅徒歩1分の事務所仕様の店舗物件のご案内です。

居抜き市場トップ 居抜き物件、貸店舗を探す 東京メトロ東西線 , 江東区 門前仲町駅徒歩1分の事務所仕様の店舗物件詳細

東京メトロ東西線

門前仲町駅

徒歩1

所在地

江東区門前仲町・・・詳細は

貸店舗(事務所仕様)の外観
門前仲町の事務所仕様店舗物件の内装

ログイン後に

物件情報の全てがご覧いただけます。

会員登録(無料)
門前仲町の事務所仕様店舗物件の内装

ログイン後に

物件情報の全てがご覧いただけます。

会員登録(無料)
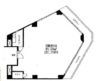
門前仲町の事務所仕様物件の平面図

ログイン後に

物件情報の全てがご覧いただけます。

会員登録(無料)
貸店舗(事務所仕様)の外観
門前仲町の事務所仕様店舗物件の内装
門前仲町の事務所仕様店舗物件の内装
門前仲町の事務所仕様物件の平面図
賃料

554,200円(税込)

階数/面積

5F / 27.71坪 (91.63㎡)

敷金・保証金

4ヶ月分

飲食条件

軽飲食可

物件タイプ/現業態

事務所仕様

※会員限定の
情報
ございます。

会員限定の情報がございます。

会員登録(無料)をしていただくと、 物件詳細、物件資料のダウンロード、地図での立地確認など 会員限定の公開情報を閲覧・取得できるようになります。

会員登録(無料)

地下鉄各線『門前仲町駅』徒歩1分、軽飲食可能な貸店舗のご紹介です。交通量の多い清澄通りに面する角地ビルの5階区画で視認良好!軽飲食の他、サロン・クリニック・美容室や事務所としての利用におすすめです。諸条件等、お気軽にお問合せください。

物件概要

会員登録(無料)をすることで
物件情報の全てがご覧いただけます。

会員登録(無料)をしていただくと、他社には出回っていない物件情報の収集、
非会員の方には閲覧できない詳細情報、物件資料のダウンロード、
地図での立地確認など会員限定公開情報を閲覧・取得できるようになります。

会員登録(無料)

地図

会員登録後にご覧いただけます。

会員登録(無料)
×
区分
新着・未公開物件情報

登録で 会員規約プライバシーポリシー に同意したものとします。

※必須

会員登録(無料)
物件詳細や公開情報がご覧になれます!