曙橋駅徒歩4分のその他居抜き物件のご案内です。

ゲスト

営業時間:9:30~18:30(土日・祝日を除く)

ゲスト

曙橋駅徒歩4分のその他居抜き物件のご案内です。

居抜き市場トップ 居抜き物件、貸店舗を探す 都営新宿線 , 新宿区 曙橋駅徒歩4分のその他居抜き物件情報

都営新宿線

曙橋駅

徒歩4

所在地

新宿区住吉町・・・詳細は

曙橋の居抜き店舗の内装
曙橋の居抜き店舗の外観

ログイン後に

物件情報の全てがご覧いただけます。

会員登録(無料)
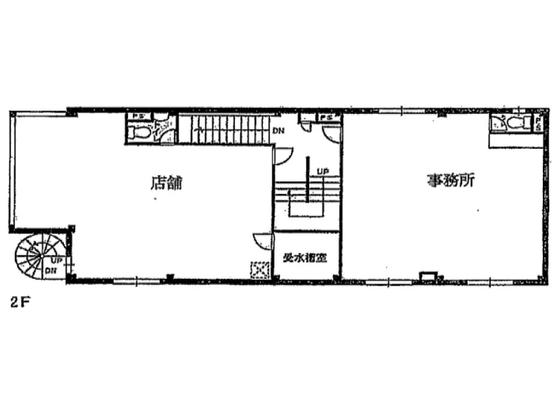
曙橋の居抜き店舗の平面図

ログイン後に

物件情報の全てがご覧いただけます。

会員登録(無料)
曙橋の居抜き店舗の内装
曙橋の居抜き店舗の外観
曙橋の居抜き店舗の平面図
賃料

302,500円(税込)

階数/面積

2F / 16.31坪 (53.94㎡)

敷金・保証金

6ヶ月分

造作代金

相談

飲食条件

軽飲食可

物件タイプ/現業態

居抜き

※会員限定の
情報
ございます。

会員限定の情報がございます。

会員登録(無料)をしていただくと、 物件詳細、物件資料のダウンロード、地図での立地確認など 会員限定の公開情報を閲覧・取得できるようになります。

会員登録(無料)

都営新宿線『曙橋駅』徒歩4分、エステサロンや整体におすすめな居抜き物件のご紹介です。多数店舗が軒を連ねるあけぼのばし通り商店街2階店舗!軽飲食店のご相談も可能です。諸条件等、お気軽にお問合せください。

物件概要

会員登録(無料)をすることで
物件情報の全てがご覧いただけます。

会員登録(無料)をしていただくと、他社には出回っていない物件情報の収集、
非会員の方には閲覧できない詳細情報、物件資料のダウンロード、
地図での立地確認など会員限定公開情報を閲覧・取得できるようになります。

会員登録(無料)

地図

会員登録後にご覧いただけます。

会員登録(無料)
×
区分
新着・未公開物件情報

登録で 会員規約プライバシーポリシー に同意したものとします。

※必須

会員登録(無料)
物件詳細や公開情報がご覧になれます!