西荻窪駅、重飲食可能な2階のスケルトン店舗物件のご案内です。

ゲスト

営業時間:9:30~18:30(土日・祝日を除く)

ゲスト

西荻窪駅、重飲食可能な2階のスケルトン店舗物件のご案内です。

居抜き市場トップ 居抜き物件、貸店舗を探す JR中央線 , 杉並区 西荻窪駅、重飲食可能な2階のスケルトン店舗物件情報

JR中央線

西荻窪駅

徒歩1

所在地

杉並区西荻南・・・詳細は

貸店舗(スケルトン)の外観
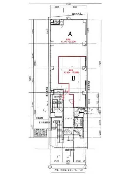
貸店舗(スケルトン)の平面図

ログイン後に

物件情報の全てがご覧いただけます。

会員登録(無料)
貸店舗(スケルトン)のその他

ログイン後に

物件情報の全てがご覧いただけます。

会員登録(無料)
貸店舗(スケルトン)の外観
貸店舗(スケルトン)の平面図
貸店舗(スケルトン)のその他
賃料

427,812円(税込)

階数/面積

2F / 13.89坪 (45.92㎡)

敷金・保証金

6ヶ月分

飲食条件

重飲食可

物件タイプ/現業態

スケルトン

※会員限定の
情報
ございます。

会員限定の情報がございます。

会員登録(無料)をしていただくと、 物件詳細、物件資料のダウンロード、地図での立地確認など 会員限定の公開情報を閲覧・取得できるようになります。

会員登録(無料)

JR中央・総武線『西荻窪駅』から徒歩1分!重飲食相談可能な貸テナントのご紹介です。駅目の前の人通り多い好立地!周辺でも飲食店が多数営業中です。店内は約13.89坪のコンパクト物件です。諸条件等、お気軽にお問合せください。

物件概要

会員登録(無料)をすることで
物件情報の全てがご覧いただけます。

会員登録(無料)をしていただくと、他社には出回っていない物件情報の収集、
非会員の方には閲覧できない詳細情報、物件資料のダウンロード、
地図での立地確認など会員限定公開情報を閲覧・取得できるようになります。

会員登録(無料)

地図

会員登録後にご覧いただけます。

会員登録(無料)
×
区分
新着・未公開物件情報

登録で 会員規約プライバシーポリシー に同意したものとします。

※必須

会員登録(無料)
物件詳細や公開情報がご覧になれます!