戸塚駅徒歩17分の自由に造作が可能なスケルトン物件のご案内です。

ゲスト

営業時間:9:30~18:30(土日・祝日を除く)

ゲスト

戸塚駅徒歩17分の自由に造作が可能なスケルトン物件のご案内です。

居抜き市場トップ 居抜き物件、貸店舗を探す ブルーライン , 横浜市戸塚区 戸塚駅徒歩17分の自由に造作が可能なスケルトン物件詳細

ブルーライン

戸塚駅

徒歩17

所在地

横浜市戸塚区戸塚町・・・詳細は

戸塚のスケルトン物件の内装
戸塚のスケルトン店舗物件のエントランス

ログイン後に

物件情報の全てがご覧いただけます。

会員登録(無料)
貸店舗(スケルトン)の外観

ログイン後に

物件情報の全てがご覧いただけます。

会員登録(無料)
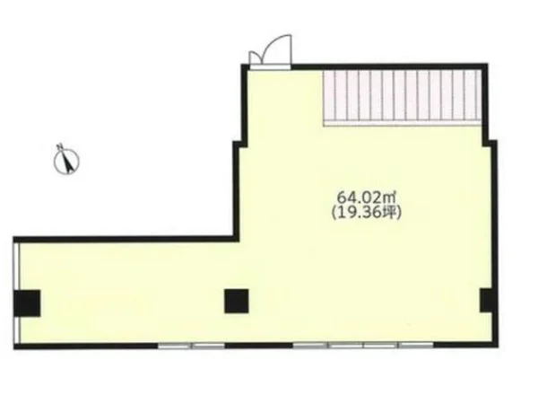
戸塚のスケルトン店舗物件の平面図

ログイン後に

物件情報の全てがご覧いただけます。

会員登録(無料)
戸塚のスケルトン物件の内装
戸塚のスケルトン店舗物件のエントランス
貸店舗(スケルトン)の外観
戸塚のスケルトン店舗物件の平面図
賃料

198,000円(税込)

階数/面積

1F / 19.36坪 (64㎡)

敷金・保証金

6ヶ月分

飲食条件

飲食可(重飲食不可)

物件タイプ/現業態

スケルトン

※会員限定の
情報
ございます。

会員限定の情報がございます。

会員登録(無料)をしていただくと、 物件詳細、物件資料のダウンロード、地図での立地確認など 会員限定の公開情報を閲覧・取得できるようになります。

会員登録(無料)

横浜市営地下鉄ブルーライン『戸塚駅』最寄り、飲食店のご相談可能な貸テナントのご紹介です。視認性良好な国道沿い1階路面店!内装デザイン自由なスケルトン引渡しになります。周辺は住宅街が広がっており、地域に根差した営業に最適です。諸条件等、お気軽にお問合せください。

物件概要

会員登録(無料)をすることで
物件情報の全てがご覧いただけます。

会員登録(無料)をしていただくと、他社には出回っていない物件情報の収集、
非会員の方には閲覧できない詳細情報、物件資料のダウンロード、
地図での立地確認など会員限定公開情報を閲覧・取得できるようになります。

会員登録(無料)

地図

会員登録後にご覧いただけます。

会員登録(無料)
×
区分
新着・未公開物件情報

登録で 会員規約プライバシーポリシー に同意したものとします。

※必須

会員登録(無料)
物件詳細や公開情報がご覧になれます!