1階路面、福生市福生の物販居抜き物件のご案内です。

ゲスト

営業時間:9:30~18:30(土日・祝日を除く)

ゲスト

1階路面、福生市福生の物販居抜き物件のご案内です。

居抜き市場トップ 居抜き物件、貸店舗を探す JR八高線 , 福生市 1階路面、福生市福生の物販居抜き物件詳細

JR八高線

東福生駅

徒歩4

所在地

福生市福生・・・詳細は

東福生の物販居抜きの内装
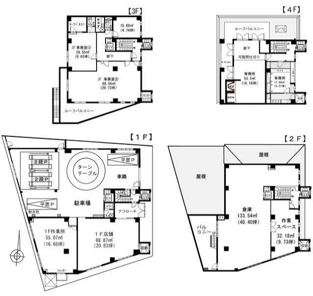
東福生の物販居抜きの平面図

ログイン後に

物件情報の全てがご覧いただけます。

会員登録(無料)
東福生の物販居抜きの内装

ログイン後に

物件情報の全てがご覧いただけます。

会員登録(無料)
東福生の居抜き店舗の内装

ログイン後に

物件情報の全てがご覧いただけます。

会員登録(無料)
東福生の居抜き店舗の内装

ログイン後に

物件情報の全てがご覧いただけます。

会員登録(無料)
物販の居抜き物件の内装

ログイン後に

物件情報の全てがご覧いただけます。

会員登録(無料)
物販の居抜き物件のその他

ログイン後に

物件情報の全てがご覧いただけます。

会員登録(無料)
東福生の居抜き店舗の外観

ログイン後に

物件情報の全てがご覧いただけます。

会員登録(無料)
東福生の物販居抜きの内装
東福生の物販居抜きの平面図
東福生の物販居抜きの内装
東福生の居抜き店舗の内装
東福生の居抜き店舗の内装
物販の居抜き物件の内装
物販の居抜き物件のその他
東福生の居抜き店舗の外観
賃料

880,000円(税込)

階数/面積

1F~4F / 236.04坪 (780.33㎡)

敷金・保証金

3ヶ月分

造作代金

相談

飲食条件

重飲食可

物件タイプ/現業態

居抜き / 物販

※会員限定の
情報
ございます。

会員限定の情報がございます。

会員登録(無料)をしていただくと、 物件詳細、物件資料のダウンロード、地図での立地確認など 会員限定の公開情報を閲覧・取得できるようになります。

会員登録(無料)
  • 路面店

JR八高線『東福生駅』徒歩4分、輸入雑貨店居抜き物件のご紹介です。⽶軍横⽥基地前16号線沿い路面店で視認性良好!4階建ての1棟貸し店舗です。駐車場6台付でお車でのアクセスも良好!飲食店のご相談も可能なため、諸条件等、お気軽にお問合せください。

物件概要

会員登録(無料)をすることで
物件情報の全てがご覧いただけます。

会員登録(無料)をしていただくと、他社には出回っていない物件情報の収集、
非会員の方には閲覧できない詳細情報、物件資料のダウンロード、
地図での立地確認など会員限定公開情報を閲覧・取得できるようになります。

会員登録(無料)

地図

会員登録後にご覧いただけます。

会員登録(無料)
×
区分
新着・未公開物件情報

登録で 会員規約プライバシーポリシー に同意したものとします。

※必須

会員登録(無料)
物件詳細や公開情報がご覧になれます!