1階路面、松戸市本町のスケルトン物件のご案内です。

ゲスト

営業時間:9:30~18:30(土日・祝日を除く)

ゲスト

1階路面、松戸市本町のスケルトン物件のご案内です。

居抜き市場トップ 居抜き物件、貸店舗を探す JR常磐線 , 松戸市 1階路面、松戸市本町のスケルトン物件詳細

JR常磐線

松戸駅

徒歩1

所在地

松戸市本町・・・詳細は

貸店舗(スケルトン)の外観
松戸のスケルトン店舗物件の外観

ログイン後に

物件情報の全てがご覧いただけます。

会員登録(無料)
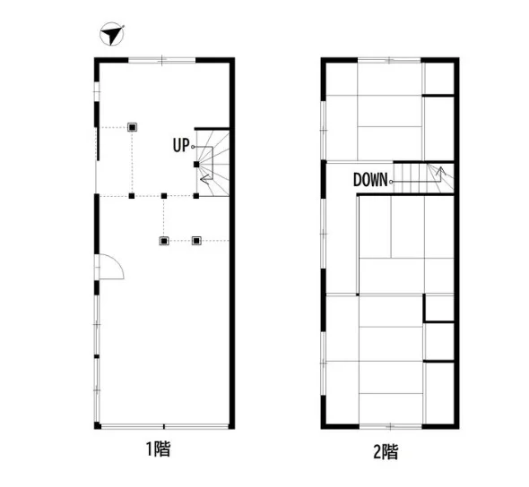
貸店舗(スケルトン)の平面図

ログイン後に

物件情報の全てがご覧いただけます。

会員登録(無料)
松戸のスケルトン物件の地図

ログイン後に

物件情報の全てがご覧いただけます。

会員登録(無料)
貸店舗(スケルトン)の外観
松戸のスケルトン店舗物件の外観
貸店舗(スケルトン)の平面図
松戸のスケルトン物件の地図
賃料

437,800円(税込)

階数/面積

1F~2F / 21.99坪 (72.72㎡)

敷金・保証金

10ヶ月分

飲食条件

飲食可

物件タイプ/現業態

スケルトン

※会員限定の
情報
ございます。

会員限定の情報がございます。

会員登録(無料)をしていただくと、 物件詳細、物件資料のダウンロード、地図での立地確認など 会員限定の公開情報を閲覧・取得できるようになります。

会員登録(無料)
  • 路面店

【飲食・物販店限定募集】JR常磐線『松戸駅』徒歩1分、松戸駅西口至近の寶光院通り沿いの好立地物件のご紹介です。周辺は飲食店を中心に各種店舗が立ち並ぶエリアで、駅利用者の集客が見込めます。今回は飲食・物販店限定でのご案内となります。お問い合わせはお早めに!

物件概要

会員登録(無料)をすることで
物件情報の全てがご覧いただけます。

会員登録(無料)をしていただくと、他社には出回っていない物件情報の収集、
非会員の方には閲覧できない詳細情報、物件資料のダウンロード、
地図での立地確認など会員限定公開情報を閲覧・取得できるようになります。

会員登録(無料)

地図

会員登録後にご覧いただけます。

会員登録(無料)
×
区分
新着・未公開物件情報

登録で 会員規約プライバシーポリシー に同意したものとします。

※必須

会員登録(無料)
物件詳細や公開情報がご覧になれます!