小竹向原駅、1階路面のスケルトン店舗物件のご案内です。

ゲスト

営業時間:9:30~18:30(土日・祝日を除く)

ゲスト

小竹向原駅、1階路面のスケルトン店舗物件のご案内です。

居抜き市場トップ 居抜き物件、貸店舗を探す 東京メトロ有楽町線 , 板橋区 小竹向原駅、1階路面のスケルトン店舗物件情報

東京メトロ有楽町線

小竹向原駅

徒歩12

所在地

板橋区大谷口北町・・・詳細は

小竹向原のスケルトン店舗物件の内装
小竹向原のスケルトン物件の外観

ログイン後に

物件情報の全てがご覧いただけます。

会員登録(無料)
小竹向原のスケルトン店舗物件の外観

ログイン後に

物件情報の全てがご覧いただけます。

会員登録(無料)
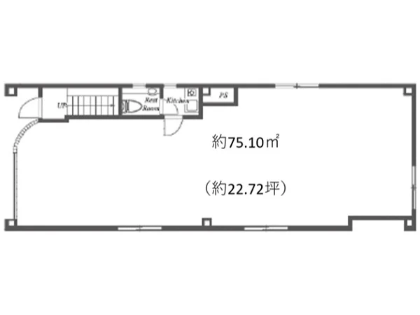
貸店舗(スケルトン)の平面図

ログイン後に

物件情報の全てがご覧いただけます。

会員登録(無料)
小竹向原のスケルトン店舗物件の内装
小竹向原のスケルトン物件の外観
小竹向原のスケルトン店舗物件の外観
貸店舗(スケルトン)の平面図
賃料

225,000円(税込)

階数/面積

1F / 22.71坪 (75.1㎡)

敷金・保証金

3ヶ月分

飲食条件

飲食可

物件タイプ/現業態

スケルトン

※会員限定の
情報
ございます。

会員限定の情報がございます。

会員登録(無料)をしていただくと、 物件詳細、物件資料のダウンロード、地図での立地確認など 会員限定の公開情報を閲覧・取得できるようになります。

会員登録(無料)
  • 路面店

東京メトロ有楽町線『小竹向原駅』最寄り、住宅街の中にあるパステル宮ノ下商店街内から、軽飲食のご相談可能な貸店舗のご紹介です。視認性良好な1階路面店!郵便局近くで向かいではパン屋が営業中!地域密着型店舗をお探しの方におすすめです。

物件概要

会員登録(無料)をすることで
物件情報の全てがご覧いただけます。

会員登録(無料)をしていただくと、他社には出回っていない物件情報の収集、
非会員の方には閲覧できない詳細情報、物件資料のダウンロード、
地図での立地確認など会員限定公開情報を閲覧・取得できるようになります。

会員登録(無料)

地図

会員登録後にご覧いただけます。

会員登録(無料)
×
区分
新着・未公開物件情報

登録で 会員規約プライバシーポリシー に同意したものとします。

※必須

会員登録(無料)
物件詳細や公開情報がご覧になれます!