重飲食ができる池袋駅徒歩8分のスケルトン貸店舗・テナント物件のご案内です。

ゲスト

営業時間:9:30~18:30(土日・祝日を除く)

ゲスト

重飲食ができる池袋駅徒歩8分のスケルトン貸店舗・テナント物件のご案内です。

居抜き市場トップ 居抜き物件、貸店舗を探す JR山手線 , 豊島区 重飲食ができる池袋駅徒歩8分のスケルトン貸店舗・テナント物件詳細

JR山手線

池袋駅

徒歩8

所在地

豊島区東池袋・・・詳細は

池袋のスケルトン店舗物件の内装
貸店舗(スケルトン)の内装

ログイン後に

物件情報の全てがご覧いただけます。

会員登録(無料)
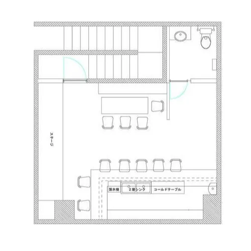
貸店舗(スケルトン)の平面図

ログイン後に

物件情報の全てがご覧いただけます。

会員登録(無料)
貸店舗(スケルトン)のその他

ログイン後に

物件情報の全てがご覧いただけます。

会員登録(無料)
貸店舗(スケルトン)の外観

ログイン後に

物件情報の全てがご覧いただけます。

会員登録(無料)
池袋のスケルトン店舗物件の内装
貸店舗(スケルトン)の内装
貸店舗(スケルトン)の平面図
貸店舗(スケルトン)のその他
貸店舗(スケルトン)の外観
賃料

258,500円(税込)

階数/面積

-1F / 8.04坪 (26.58㎡)

敷金・保証金

6ヶ月分

飲食条件

重飲食可

物件タイプ/現業態

スケルトン / BAR・ショットバー

※会員限定の
情報
ございます。

会員限定の情報がございます。

会員登録(無料)をしていただくと、 物件詳細、物件資料のダウンロード、地図での立地確認など 会員限定の公開情報を閲覧・取得できるようになります。

会員登録(無料)

複数路線利用可能『池袋駅』徒歩8分、カラオケバー居抜き物件のご紹介です。工事後1年未満のため美内装!造作代無償のため、類似業態ご希望の方は初期費用を抑えての開業が可能です。人通りの多い春日通り沿いのビル地下1階店舗で、専用階段ございます。平日・休日問わず幅広い集客が見込める池袋エリアでの出店をご検討の方におすすめの物件です。

物件概要

会員登録(無料)をすることで
物件情報の全てがご覧いただけます。

会員登録(無料)をしていただくと、他社には出回っていない物件情報の収集、
非会員の方には閲覧できない詳細情報、物件資料のダウンロード、
地図での立地確認など会員限定公開情報を閲覧・取得できるようになります。

会員登録(無料)

地図

会員登録後にご覧いただけます。

会員登録(無料)
×
区分
新着・未公開物件情報

登録で 会員規約プライバシーポリシー に同意したものとします。

※必須

会員登録(無料)
物件詳細や公開情報がご覧になれます!