重飲食ができる1階路面のスケルトン貸店舗・テナント物件のご案内です。

ゲスト

営業時間:9:30~18:30(土日・祝日を除く)

ゲスト

重飲食ができる1階路面のスケルトン貸店舗・テナント物件のご案内です。

居抜き市場トップ 居抜き物件、貸店舗を探す JR中央本線 , 小金井市 重飲食ができる1階路面のスケルトン貸店舗・テナント物件情報

JR中央本線

武蔵小金井駅

徒歩3

所在地

小金井市本町・・・詳細は

武蔵小金井のスケルトン店舗物件の内装
貸店舗(スケルトン)の地図

ログイン後に

物件情報の全てがご覧いただけます。

会員登録(無料)
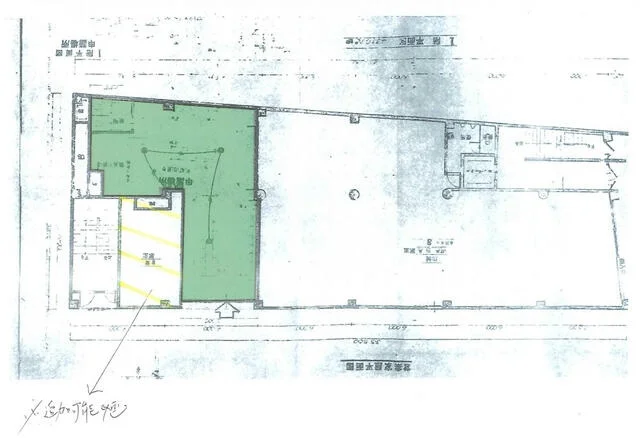
武蔵小金井のスケルトン店舗物件の平面図

ログイン後に

物件情報の全てがご覧いただけます。

会員登録(無料)
武蔵小金井のスケルトン店舗物件の外観

ログイン後に

物件情報の全てがご覧いただけます。

会員登録(無料)
武蔵小金井のスケルトン店舗物件の内装
貸店舗(スケルトン)の地図
武蔵小金井のスケルトン店舗物件の平面図
武蔵小金井のスケルトン店舗物件の外観
賃料

385,000円(税込)

階数/面積

1F / 27.66坪 (91.47㎡)

敷金・保証金

6ヶ月分

飲食条件

重飲食可

物件タイプ/現業態

スケルトン

※会員限定の
情報
ございます。

会員限定の情報がございます。

会員登録(無料)をしていただくと、 物件詳細、物件資料のダウンロード、地図での立地確認など 会員限定の公開情報を閲覧・取得できるようになります。

会員登録(無料)
  • 路面店

JR『武蔵小金井駅』徒歩3分、飲食店ご相談可能な貸店舗のご案内です。有名飲食チェーン多数集まる北口商店街、上の原通り沿い!大手チェーン店が多数出店中のエリアで幅広い客層が期待できます。テイクアウト需要もございます。お問合せはお早目に!

物件概要

会員登録(無料)をすることで
物件情報の全てがご覧いただけます。

会員登録(無料)をしていただくと、他社には出回っていない物件情報の収集、
非会員の方には閲覧できない詳細情報、物件資料のダウンロード、
地図での立地確認など会員限定公開情報を閲覧・取得できるようになります。

会員登録(無料)

地図

会員登録後にご覧いただけます。

会員登録(無料)
×
区分
新着・未公開物件情報

登録で 会員規約プライバシーポリシー に同意したものとします。

※必須

会員登録(無料)
物件詳細や公開情報がご覧になれます!