重飲食ができる平塚駅徒歩1分のスケルトン貸店舗・テナント物件のご案内です。

ゲスト

営業時間:9:30~18:30(土日・祝日を除く)

ゲスト

重飲食ができる平塚駅徒歩1分のスケルトン貸店舗・テナント物件のご案内です。

居抜き市場トップ 居抜き物件、貸店舗を探す JR東海道本線 , 平塚市 重飲食ができる平塚駅徒歩1分のスケルトン貸店舗・テナント物件詳細

JR東海道本線

平塚駅

徒歩1

所在地

平塚市紅谷町・・・詳細は

平塚のスケルトン店舗物件の外観
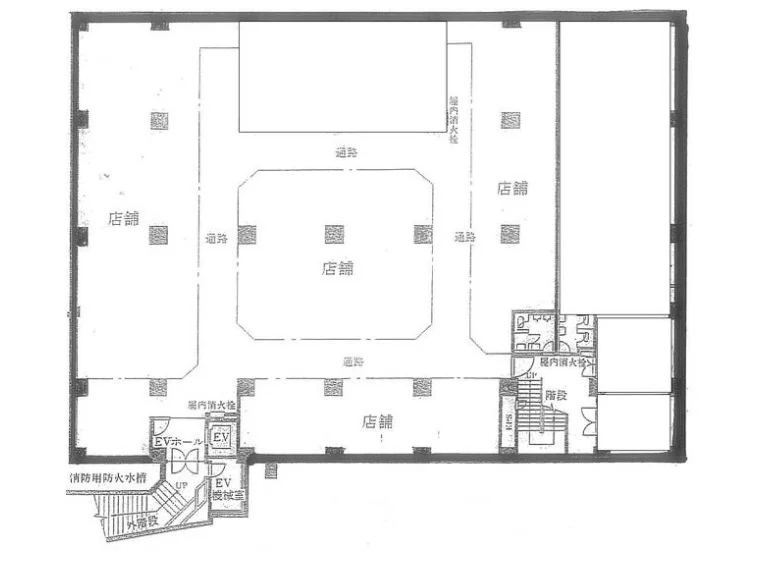
貸店舗(スケルトン)の平面図

ログイン後に

物件情報の全てがご覧いただけます。

会員登録(無料)
平塚のスケルトン店舗物件の外観

ログイン後に

物件情報の全てがご覧いただけます。

会員登録(無料)
平塚のスケルトン店舗物件の外観
貸店舗(スケルトン)の平面図
平塚のスケルトン店舗物件の外観
賃料

1,100,000円(税込)

階数/面積

-1F / 211.84坪 (700.32㎡)

敷金・保証金

10ヶ月分

飲食条件

重飲食可

物件タイプ/現業態

スケルトン

※会員限定の
情報
ございます。

会員限定の情報がございます。

会員登録(無料)をしていただくと、 物件詳細、物件資料のダウンロード、地図での立地確認など 会員限定の公開情報を閲覧・取得できるようになります。

会員登録(無料)

【再募集】JR東海道本線『平塚駅』徒歩1分!飲食店相談可能な貸テナントのご紹介です。周辺には駅ビル・自転車置き場があり、昼夜問わず駅利用者の往来が多い立地です。毎年夏には七夕祭りが大規模に開催され、学生・大人問わず幅広い客層の集客が見込めます。約211.84坪の大箱物件!各業種、ご相談ください。

物件概要

会員登録(無料)をすることで
物件情報の全てがご覧いただけます。

会員登録(無料)をしていただくと、他社には出回っていない物件情報の収集、
非会員の方には閲覧できない詳細情報、物件資料のダウンロード、
地図での立地確認など会員限定公開情報を閲覧・取得できるようになります。

会員登録(無料)

地図

会員登録後にご覧いただけます。

会員登録(無料)
×
区分
新着・未公開物件情報

登録で 会員規約プライバシーポリシー に同意したものとします。

※必須

会員登録(無料)
物件詳細や公開情報がご覧になれます!