鶴ヶ峰駅徒歩1分のスケルトン物件のご案内です。

ゲスト

営業時間:9:30~18:30(土日・祝日を除く)

ゲスト

鶴ヶ峰駅徒歩1分のスケルトン物件のご案内です。

居抜き市場トップ 居抜き物件、貸店舗を探す 相鉄本線 , 横浜市旭区 鶴ヶ峰駅徒歩1分のスケルトン物件情報

相鉄本線

鶴ヶ峰駅

徒歩1

所在地

横浜市旭区鶴ケ峰・・・詳細は

鶴ヶ峰のスケルトン店舗物件の外観
鶴ヶ峰のスケルトン店舗物件の内装

ログイン後に

物件情報の全てがご覧いただけます。

会員登録(無料)
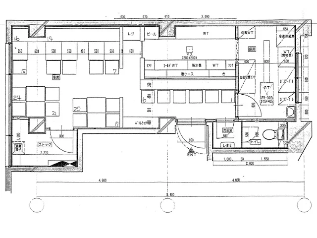
貸店舗(スケルトン)の平面図

ログイン後に

物件情報の全てがご覧いただけます。

会員登録(無料)
鶴ヶ峰のスケルトン店舗物件の外観
鶴ヶ峰のスケルトン店舗物件の内装
貸店舗(スケルトン)の平面図
賃料

183,500円(税込)

階数/面積

3F / 13.14坪 (43.47㎡)

敷金・保証金

8ヶ月分

飲食条件

飲食可

物件タイプ/現業態

スケルトン

※会員限定の
情報
ございます。

会員限定の情報がございます。

会員登録(無料)をしていただくと、 物件詳細、物件資料のダウンロード、地図での立地確認など 会員限定の公開情報を閲覧・取得できるようになります。

会員登録(無料)

相鉄本線『鶴ケ峰駅』徒歩1分、飲食店のご相談可能な貸テナントのご紹介です。駅北口から続く霧ヶ峰商店街に位置する商業ビル3階店舗!バーや整体、塾などに最適です。お気軽にお問合せください。

物件概要

会員登録(無料)をすることで
物件情報の全てがご覧いただけます。

会員登録(無料)をしていただくと、他社には出回っていない物件情報の収集、
非会員の方には閲覧できない詳細情報、物件資料のダウンロード、
地図での立地確認など会員限定公開情報を閲覧・取得できるようになります。

会員登録(無料)

地図

会員登録後にご覧いただけます。

会員登録(無料)
×
区分
新着・未公開物件情報

登録で 会員規約プライバシーポリシー に同意したものとします。

※必須

会員登録(無料)
物件詳細や公開情報がご覧になれます!