久喜駅、1階路面のスケルトン店舗物件のご案内です。

ゲスト

営業時間:9:30~18:30(土日・祝日を除く)

ゲスト

久喜駅、1階路面のスケルトン店舗物件のご案内です。

居抜き市場トップ 居抜き物件、貸店舗を探す JR湘南新宿ライン , 久喜市 久喜駅、1階路面のスケルトン店舗物件情報

JR湘南新宿ライン

久喜駅

徒歩9

所在地

久喜市久喜中央・・・詳細は

久喜のスケルトン物件の外観
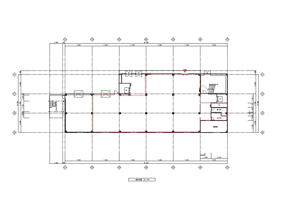
久喜のスケルトン物件の平面図

ログイン後に

物件情報の全てがご覧いただけます。

会員登録(無料)
久喜のスケルトン店舗物件の平面図

ログイン後に

物件情報の全てがご覧いただけます。

会員登録(無料)
久喜のスケルトン物件の外観
久喜のスケルトン物件の平面図
久喜のスケルトン店舗物件の平面図
賃料

1,980,000円(税込)

階数/面積

1F / 120坪 (396.69㎡)

敷金・保証金

10ヶ月分

飲食条件

飲食可

物件タイプ/現業態

スケルトン

※会員限定の
情報
ございます。

会員限定の情報がございます。

会員登録(無料)をしていただくと、 物件詳細、物件資料のダウンロード、地図での立地確認など 会員限定の公開情報を閲覧・取得できるようになります。

会員登録(無料)
  • 路面店

『久喜駅』徒歩9分、飲食店ご相談可能な貸店舗のご案内です。イトーヨーカドーに隣接しており、来客用駐車場はイトーヨーカドーと共有になります。なかなか出ない約120坪の大箱物件ですので、飲食店以外の業種もお気軽にご相談ください。

物件概要

会員登録(無料)をすることで
物件情報の全てがご覧いただけます。

会員登録(無料)をしていただくと、他社には出回っていない物件情報の収集、
非会員の方には閲覧できない詳細情報、物件資料のダウンロード、
地図での立地確認など会員限定公開情報を閲覧・取得できるようになります。

会員登録(無料)

地図

会員登録後にご覧いただけます。

会員登録(無料)
×
区分
新着・未公開物件情報

登録で 会員規約プライバシーポリシー に同意したものとします。

※必須

会員登録(無料)
物件詳細や公開情報がご覧になれます!