重飲食可能な大田区西蒲田にある3階のスケルトン物件のご案内です。

ゲスト

営業時間:9:30~18:30(土日・祝日を除く)

ゲスト

重飲食可能な大田区西蒲田にある3階のスケルトン物件のご案内です。

居抜き市場トップ 居抜き物件、貸店舗を探す JR京浜東北・根岸線 , 大田区 重飲食可能な大田区西蒲田にある3階のスケルトン物件情報

JR京浜東北・根岸線

蒲田駅

徒歩1

所在地

大田区西蒲田・・・詳細は

蒲田のスケルトン物件の外観
蒲田のスケルトン物件の内装

ログイン後に

物件情報の全てがご覧いただけます。

会員登録(無料)
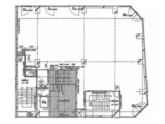
貸店舗(スケルトン)の平面図

ログイン後に

物件情報の全てがご覧いただけます。

会員登録(無料)
蒲田のスケルトン物件の外観
蒲田のスケルトン物件の内装
貸店舗(スケルトン)の平面図
賃料

1,078,000円(税込)

階数/面積

3F / 69.99坪 (231.4㎡)

敷金・保証金

10ヶ月分

飲食条件

重飲食可

物件タイプ/現業態

スケルトン

※会員限定の
情報
ございます。

会員限定の情報がございます。

会員登録(無料)をしていただくと、 物件詳細、物件資料のダウンロード、地図での立地確認など 会員限定の公開情報を閲覧・取得できるようになります。

会員登録(無料)

JR京浜東北線・根岸線「蒲田駅」徒歩1分!東急池上線「蒲田駅」徒歩3分!駅を出てすぐの駅チカ物件!JR線、東急線の2路線が利用できます。そのため蒲田駅は1日に約10万人が利用しています。また重飲食も相談可能なので、ぜひお問い合わせください。

物件概要

会員登録(無料)をすることで
物件情報の全てがご覧いただけます。

会員登録(無料)をしていただくと、他社には出回っていない物件情報の収集、
非会員の方には閲覧できない詳細情報、物件資料のダウンロード、
地図での立地確認など会員限定公開情報を閲覧・取得できるようになります。

会員登録(無料)

地図

会員登録後にご覧いただけます。

会員登録(無料)
×
区分
新着・未公開物件情報

登録で 会員規約プライバシーポリシー に同意したものとします。

※必須

会員登録(無料)
物件詳細や公開情報がご覧になれます!