重飲食可能な1階路面のスケルトン物件のご案内です。

ゲスト

営業時間:9:30~18:30(土日・祝日を除く)

ゲスト

重飲食可能な1階路面のスケルトン物件のご案内です。

居抜き市場トップ 居抜き物件、貸店舗を探す 西武多摩湖線 , 小平市 重飲食可能な1階路面のスケルトン物件情報

西武多摩湖線

一橋学園駅

徒歩3

所在地

小平市学園東町・・・詳細は

一橋学園のスケルトン店舗物件の外観
一橋学園のスケルトン店舗物件の内装

ログイン後に

物件情報の全てがご覧いただけます。

会員登録(無料)
貸店舗(スケルトン)の内装

ログイン後に

物件情報の全てがご覧いただけます。

会員登録(無料)
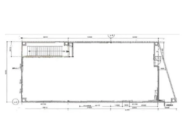
一橋学園のスケルトン店舗物件の平面図

ログイン後に

物件情報の全てがご覧いただけます。

会員登録(無料)
一橋学園のスケルトン店舗物件の外観
一橋学園のスケルトン店舗物件の内装
貸店舗(スケルトン)の内装
一橋学園のスケルトン店舗物件の平面図
賃料

726,000円(税込)

階数/面積

1F / 43.34坪 (143.3㎡)

敷金・保証金

3ヶ月分

飲食条件

重飲食可

物件タイプ/現業態

スケルトン

※会員限定の
情報
ございます。

会員限定の情報がございます。

会員登録(無料)をしていただくと、 物件詳細、物件資料のダウンロード、地図での立地確認など 会員限定の公開情報を閲覧・取得できるようになります。

会員登録(無料)
  • 路面店

西武多摩湖線『一橋学園駅』徒歩3分、重飲食のご相談可能な貸テナントのご紹介です。駅北口を通る昔懐かしい商店街・学園一番街商店会に位置する1階路面店!地元住民の集客が期待できます。直近では物販店が営業していました。各業種お気軽にお問合せください。

物件概要

会員登録(無料)をすることで
物件情報の全てがご覧いただけます。

会員登録(無料)をしていただくと、他社には出回っていない物件情報の収集、
非会員の方には閲覧できない詳細情報、物件資料のダウンロード、
地図での立地確認など会員限定公開情報を閲覧・取得できるようになります。

会員登録(無料)

地図

会員登録後にご覧いただけます。

会員登録(無料)
×
区分
新着・未公開物件情報

登録で 会員規約プライバシーポリシー に同意したものとします。

※必須

会員登録(無料)
物件詳細や公開情報がご覧になれます!