重飲食可能な横浜市中区花咲町にある6階のスケルトン物件のご案内です。

ゲスト

営業時間:9:30~18:30(土日・祝日を除く)

ゲスト

重飲食可能な横浜市中区花咲町にある6階のスケルトン物件のご案内です。

居抜き市場トップ 居抜き物件、貸店舗を探す ブルーライン , 横浜市中区 重飲食可能な横浜市中区花咲町にある6階のスケルトン物件情報

ブルーライン

桜木町駅

徒歩1

所在地

横浜市中区花咲町・・・詳細は

桜木町のスケルトン店舗物件の外観
桜木町のスケルトン店舗物件の内装

ログイン後に

物件情報の全てがご覧いただけます。

会員登録(無料)
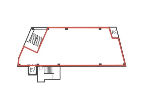
桜木町のスケルトン物件の平面図

ログイン後に

物件情報の全てがご覧いただけます。

会員登録(無料)
桜木町のスケルトン店舗物件の外観
桜木町のスケルトン店舗物件の内装
桜木町のスケルトン物件の平面図
賃料

774,576円(税込)

階数/面積

6F / 78.23坪 (258.64㎡)

敷金・保証金

500万円

飲食条件

重飲食可

物件タイプ/現業態

スケルトン

※会員限定の
情報
ございます。

会員限定の情報がございます。

会員登録(無料)をしていただくと、 物件詳細、物件資料のダウンロード、地図での立地確認など 会員限定の公開情報を閲覧・取得できるようになります。

会員登録(無料)

横浜市ブルーライン「桜木町駅」徒歩1分!JR根岸線から4分、京急本線「日ノ出町駅」徒歩7分!複数路線が交わり、非常に利便性のある駅と言えます。さらには横浜駅まで電車で7分ということもありターミナル駅へのアクセスも十分です。桜木町駅周辺は飲食店が多く、料理やお酒を楽しむ方々が多く見られます。大通りに面しているので視認性も良好です。

物件概要

会員登録(無料)をすることで
物件情報の全てがご覧いただけます。

会員登録(無料)をしていただくと、他社には出回っていない物件情報の収集、
非会員の方には閲覧できない詳細情報、物件資料のダウンロード、
地図での立地確認など会員限定公開情報を閲覧・取得できるようになります。

会員登録(無料)

地図

会員登録後にご覧いただけます。

会員登録(無料)
×
区分
新着・未公開物件情報

登録で 会員規約プライバシーポリシー に同意したものとします。

※必須

会員登録(無料)
物件詳細や公開情報がご覧になれます!