重飲食可能な杉並区西荻南にある2階の事務所仕様の物件のご案内です。

ゲスト

営業時間:9:30~18:30(土日・祝日を除く)

ゲスト

重飲食可能な杉並区西荻南にある2階の事務所仕様の物件のご案内です。

居抜き市場トップ 居抜き物件、貸店舗を探す JR中央・総武線 , 杉並区 重飲食可能な杉並区西荻南にある2階の事務所仕様の物件情報

JR中央・総武線

西荻窪駅

徒歩1

所在地

杉並区西荻南・・・詳細は

西荻窪の事務所仕様店舗物件の外観
西荻窪の事務所仕様物件の内装

ログイン後に

物件情報の全てがご覧いただけます。

会員登録(無料)
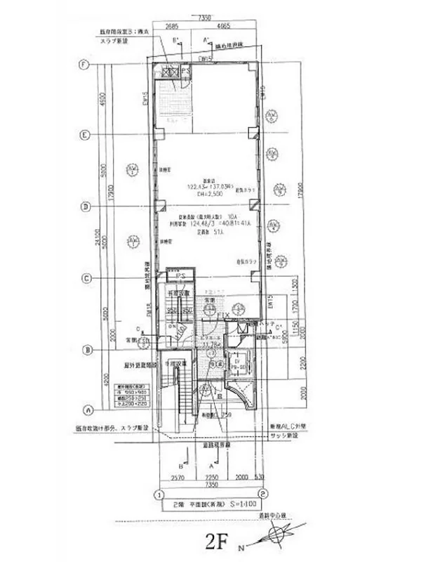
貸店舗(事務所仕様)の平面図

ログイン後に

物件情報の全てがご覧いただけます。

会員登録(無料)
西荻窪の事務所仕様店舗物件の外観
西荻窪の事務所仕様物件の内装
貸店舗(事務所仕様)の平面図
賃料

977,592円(税込)

階数/面積

2F / 37.03坪 (122.43㎡)

敷金・保証金

6ヶ月分

飲食条件

重飲食可

物件タイプ/現業態

事務所仕様

※会員限定の
情報
ございます。

会員限定の情報がございます。

会員登録(無料)をしていただくと、 物件詳細、物件資料のダウンロード、地図での立地確認など 会員限定の公開情報を閲覧・取得できるようになります。

会員登録(無料)

JR総武線『西荻窪駅』徒歩1分、飲食店ご相談可能な貸店舗のご案内です。駅からのアクセス良好な2階テナント。駅前の動線上に位置しているため、駅利用者を中心とした集客が期待できます。諸条件等、お気軽にお問い合わせください。

物件概要

会員登録(無料)をすることで
物件情報の全てがご覧いただけます。

会員登録(無料)をしていただくと、他社には出回っていない物件情報の収集、
非会員の方には閲覧できない詳細情報、物件資料のダウンロード、
地図での立地確認など会員限定公開情報を閲覧・取得できるようになります。

会員登録(無料)

地図

会員登録後にご覧いただけます。

会員登録(無料)
×
区分
新着・未公開物件情報

登録で 会員規約プライバシーポリシー に同意したものとします。

※必須

会員登録(無料)
物件詳細や公開情報がご覧になれます!