重飲食可能な千代田区神田錦町にある8階のスケルトン物件のご案内です。

ゲスト

営業時間:9:30~18:30(土日・祝日を除く)

ゲスト

重飲食可能な千代田区神田錦町にある8階のスケルトン物件のご案内です。

居抜き市場トップ 居抜き物件、貸店舗を探す 都営新宿線 , 千代田区 重飲食可能な千代田区神田錦町にある8階のスケルトン物件情報

都営新宿線

小川町駅

徒歩1

所在地

千代田区神田錦町・・・詳細は

小川町のスケルトン物件の外観
小川町のスケルトン物件の外観

ログイン後に

物件情報の全てがご覧いただけます。

会員登録(無料)
小川町のスケルトン物件の外観

ログイン後に

物件情報の全てがご覧いただけます。

会員登録(無料)
小川町のスケルトン物件のその他

ログイン後に

物件情報の全てがご覧いただけます。

会員登録(無料)
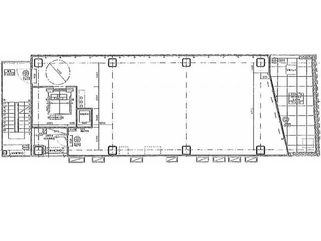
貸店舗(スケルトン)の平面図

ログイン後に

物件情報の全てがご覧いただけます。

会員登録(無料)
小川町のスケルトン物件の外観
小川町のスケルトン物件の外観
小川町のスケルトン物件の外観
小川町のスケルトン物件のその他
貸店舗(スケルトン)の平面図
賃料

605,000円(税込)

階数/面積

8F / 24.37坪 (80.59㎡)

敷金・保証金

6ヶ月分

飲食条件

重飲食可

物件タイプ/現業態

スケルトン

※会員限定の
情報
ございます。

会員限定の情報がございます。

会員登録(無料)をしていただくと、 物件詳細、物件資料のダウンロード、地図での立地確認など 会員限定の公開情報を閲覧・取得できるようになります。

会員登録(無料)
  • 路面店

都営新宿線『小川町駅』徒歩1分。エレベーター完備!洗練されたおしゃれなビジネス街で、周辺にはカフェやラーメン屋などの飲食店が立ち並んでおります。また、徒歩圏内に神田スクエアホールがあり、ライブやイベント前後の集客も見込めます!飲食店のご相談も可能ですので、お気軽にお問い合わせください。

物件概要

会員登録(無料)をすることで
物件情報の全てがご覧いただけます。

会員登録(無料)をしていただくと、他社には出回っていない物件情報の収集、
非会員の方には閲覧できない詳細情報、物件資料のダウンロード、
地図での立地確認など会員限定公開情報を閲覧・取得できるようになります。

会員登録(無料)

地図

会員登録後にご覧いただけます。

会員登録(無料)
×
区分
新着・未公開物件情報

登録で 会員規約プライバシーポリシー に同意したものとします。

※必須

会員登録(無料)
物件詳細や公開情報がご覧になれます!