大森駅徒歩3分のスケルトン店舗物件のご案内です。

ゲスト

営業時間:9:30~18:30(土日・祝日を除く)

ゲスト

大森駅徒歩3分のスケルトン店舗物件のご案内です。

居抜き市場トップ 居抜き物件、貸店舗を探す JR京浜東北・根岸線 , 大田区 大森駅徒歩3分のスケルトン店舗物件詳細

JR京浜東北・根岸線

大森駅

徒歩3

所在地

大田区大森北・・・詳細は

貸店舗(スケルトン)の外観
大森のスケルトン物件の内装

ログイン後に

物件情報の全てがご覧いただけます。

会員登録(無料)
大森のスケルトン物件の内装

ログイン後に

物件情報の全てがご覧いただけます。

会員登録(無料)
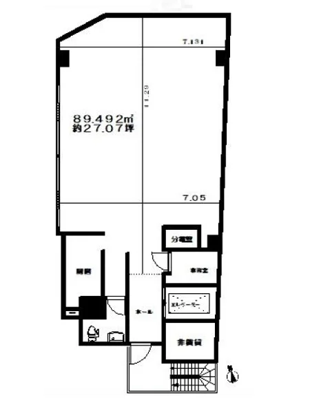
大森のスケルトン店舗物件の平面図

ログイン後に

物件情報の全てがご覧いただけます。

会員登録(無料)
大森のスケルトン店舗物件の外観

ログイン後に

物件情報の全てがご覧いただけます。

会員登録(無料)
貸店舗(スケルトン)の外観
大森のスケルトン物件の内装
大森のスケルトン物件の内装
大森のスケルトン店舗物件の平面図
大森のスケルトン店舗物件の外観
賃料

462,000円(税込)

階数/面積

-1F / 27.07坪 (89.49㎡)

敷金・保証金

6ヶ月分

飲食条件

飲食可

物件タイプ/現業態

スケルトン

※会員限定の
情報
ございます。

会員限定の情報がございます。

会員登録(無料)をしていただくと、 物件詳細、物件資料のダウンロード、地図での立地確認など 会員限定の公開情報を閲覧・取得できるようになります。

会員登録(無料)

JR京浜東北線『大森』駅徒歩3分、大森銀座商店街(ミルパ)至近の交通公園通り沿いから飲食店のご相談可能な貸テナントのご紹介です。以前はダーツバーが営業していました。周辺では昔ながらの喫茶店や大衆居酒屋等、多様な業態の飲食店が多数盛業中で、お年寄りから若者まで幅広い集客が期待できます。

物件概要

会員登録(無料)をすることで
物件情報の全てがご覧いただけます。

会員登録(無料)をしていただくと、他社には出回っていない物件情報の収集、
非会員の方には閲覧できない詳細情報、物件資料のダウンロード、
地図での立地確認など会員限定公開情報を閲覧・取得できるようになります。

会員登録(無料)

地図

会員登録後にご覧いただけます。

会員登録(無料)
×
区分
新着・未公開物件情報

登録で 会員規約プライバシーポリシー に同意したものとします。

※必須

会員登録(無料)
物件詳細や公開情報がご覧になれます!