道路に面した1階のスケルトン貸店舗・テナント物件のご案内です。

ゲスト

営業時間:9:30~18:30(土日・祝日を除く)

ゲスト

道路に面した1階のスケルトン貸店舗・テナント物件のご案内です。

居抜き市場トップ 居抜き物件、貸店舗を探す 江ノ島電鉄線 , 鎌倉市 道路に面した1階のスケルトン貸店舗・テナント物件詳細

江ノ島電鉄線

和田塚駅

徒歩1

所在地

鎌倉市由比ガ浜・・・詳細は

和田塚のスケルトン店舗物件の内装
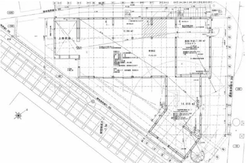
貸店舗(スケルトン)の平面図

ログイン後に

物件情報の全てがご覧いただけます。

会員登録(無料)
貸店舗(スケルトン)の内装

ログイン後に

物件情報の全てがご覧いただけます。

会員登録(無料)
貸店舗(スケルトン)の内装

ログイン後に

物件情報の全てがご覧いただけます。

会員登録(無料)
貸店舗(スケルトン)の内装

ログイン後に

物件情報の全てがご覧いただけます。

会員登録(無料)
貸店舗(スケルトン)の外観

ログイン後に

物件情報の全てがご覧いただけます。

会員登録(無料)
貸店舗(スケルトン)のその他

ログイン後に

物件情報の全てがご覧いただけます。

会員登録(無料)
和田塚のスケルトン店舗物件の内装
貸店舗(スケルトン)の平面図
貸店舗(スケルトン)の内装
貸店舗(スケルトン)の内装
貸店舗(スケルトン)の内装
貸店舗(スケルトン)の外観
貸店舗(スケルトン)のその他
賃料

660,000円(税込)

階数/面積

1F / 30.12坪 (99.58㎡)

敷金・保証金

6ヶ月分

飲食条件

飲食可

物件タイプ/現業態

スケルトン

※会員限定の
情報
ございます。

会員限定の情報がございます。

会員登録(無料)をしていただくと、 物件詳細、物件資料のダウンロード、地図での立地確認など 会員限定の公開情報を閲覧・取得できるようになります。

会員登録(無料)
  • 路面店

江ノ島電鉄『和田塚』駅から徒歩1分!駅ホームからも視認性良好!飲食店相談可能な貸テナントのご紹介です!鎌倉から近い散策スポットとして遠方からの訪問客やインバウンドも見込めます!テイクアウトカフェやパスタ店などをご検討の方におすすめです。

物件概要

会員登録(無料)をすることで
物件情報の全てがご覧いただけます。

会員登録(無料)をしていただくと、他社には出回っていない物件情報の収集、
非会員の方には閲覧できない詳細情報、物件資料のダウンロード、
地図での立地確認など会員限定公開情報を閲覧・取得できるようになります。

会員登録(無料)

地図

会員登録後にご覧いただけます。

会員登録(無料)
×
区分
新着・未公開物件情報

登録で 会員規約プライバシーポリシー に同意したものとします。

※必須

会員登録(無料)
物件詳細や公開情報がご覧になれます!