浜松町駅、重飲食可能な1階のスケルトン店舗物件のご案内です。

ゲスト

営業時間:9:30~18:30(土日・祝日を除く)

ゲスト

浜松町駅、重飲食可能な1階のスケルトン店舗物件のご案内です。

居抜き市場トップ 居抜き物件、貸店舗を探す JR山手線 , 港区 浜松町駅、重飲食可能な1階のスケルトン店舗物件情報

JR山手線

浜松町駅

徒歩8

所在地

港区芝浦・・・詳細は

浜松町のスケルトン店舗物件の外観
浜松町のスケルトン店舗物件の外観

ログイン後に

物件情報の全てがご覧いただけます。

会員登録(無料)
浜松町のスケルトン店舗物件の内装

ログイン後に

物件情報の全てがご覧いただけます。

会員登録(無料)
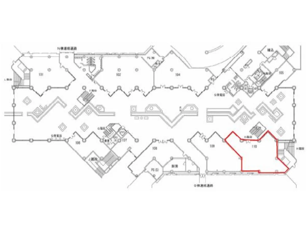
貸店舗(スケルトン)の平面図

ログイン後に

物件情報の全てがご覧いただけます。

会員登録(無料)
浜松町のスケルトン物件のその他

ログイン後に

物件情報の全てがご覧いただけます。

会員登録(無料)
浜松町のスケルトン店舗物件の外観
浜松町のスケルトン店舗物件の外観
浜松町のスケルトン店舗物件の内装
貸店舗(スケルトン)の平面図
浜松町のスケルトン物件のその他
賃料

1,283,040円(税込)

階数/面積

1F / 64.79坪 (214.21㎡)

敷金・保証金

12ヶ月分

飲食条件

重飲食可

物件タイプ/現業態

スケルトン

※会員限定の
情報
ございます。

会員限定の情報がございます。

会員登録(無料)をしていただくと、 物件詳細、物件資料のダウンロード、地図での立地確認など 会員限定の公開情報を閲覧・取得できるようになります。

会員登録(無料)

JR山手線『浜松町駅』から徒歩5分!重飲食のご相談可能な貸テナントのご紹介です。店内は約64坪と広々とした空間!角部屋かつ前面ガラス張りのため、視認性良好◎諸条件等、お気軽にお問合せください!

物件概要

会員登録(無料)をすることで
物件情報の全てがご覧いただけます。

会員登録(無料)をしていただくと、他社には出回っていない物件情報の収集、
非会員の方には閲覧できない詳細情報、物件資料のダウンロード、
地図での立地確認など会員限定公開情報を閲覧・取得できるようになります。

会員登録(無料)

地図

会員登録後にご覧いただけます。

会員登録(無料)
×
区分
新着・未公開物件情報

登録で 会員規約プライバシーポリシー に同意したものとします。

※必須

会員登録(無料)
物件詳細や公開情報がご覧になれます!